vendita Appartamento Belvedere Ostrense
Rif: M.C./B.O.Camp./711
Trilocale a Belvedere Ostrense
- 117.000
- 105 m2
- 3 locali
- 2 camere
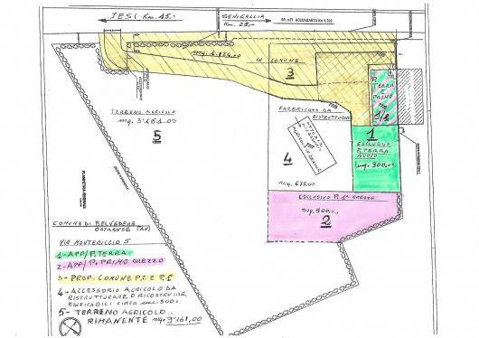
L'appartamento ancora al grezzo è al 1 Piano di uno dei più bei fabbricati tipici marchigiani dell'epoca. Completamente ristrutturato dalle fondamenta al tetto con criteri antisismici e con la predisposizione per la scala di accesso interna, tubazioni di scarico ed impianti in corrispondenza di queelli dell'appartamento sottostante, già terminato nel 2013 e anche esso in vendita. Finestre esterne già montate in legno con vetro termico ad anta ribalta. Tubazioni predisposte anche per l'aria condizionata ecc. L'appartamento da rifinire, ha a disposizione mq.500 di giardino esclusivo (identificato in planimetria con il n.2 e colore verde) + mq.1124,00 di corte comune (Identificata con il n.3 e colore giallo), strada di accesso con ingresso e cancello elettrificato sulla Prov.le dell'Acquasanta.
E' in vendita anche un lotto di terreno adiacente di mq.675,00 con fabbricato da demolire e ricostruire per mc.300,00 circa.(Identificato con il n.4 per . 23.600,00) e la restante parte di terreno agricolo di mq. 3.160,00 ( identificato con il n.5 e per .6.300,00) .
La ripartizione sulla planimetria è solamente una ipotesi, modificabile secondo le esigenze richieste.
Distanza da Jesi km.15, da Senigallia Km. 25.Sito ultra panoramico.
The still unfinished apartment is on the 1st Floor of one of the most beautiful typical Marche buildings of the time. Completely renovated from the foundations to the roof with anti-seismic criteria and with the predisposition for the internal access staircase, drain pipes and systems corresponding to those of the underlying apartment, already finished in 2013 and also for sale. External windows already assembled in wood with tilt-and-turn thermal glass. Piping also prepared for air conditioning etc. The apartment to be finished has 500 square meters of exclusive garden available (identified in plan with number 2 and green color) + 1104.00 square meters of common courtyard (identified with number 3 and yellow), street of access with entrance and electrified gate on the Province of Acquasanta.
An adjacent plot of land of approx. 675.00 is also for sale with a building to be demolished and rebuilt for approx. 300.00 cubic meters (identified with the number 4 for . 23,600.00) and the remaining part of the land agricultural area of approx. 3,160.00 (identified with number 5 and for .6,300.00).
The distribution on the plan is only a hypothesis, modifiable according to the required needs.
Distance from Jesi 15 km, from Senigallia 25 km. Ultra panoramic site. ... continua
