Casa singola abitabile a Gavi
120 m2
5 vani
€ 35.000
vendita Casa Indipendente Gavi
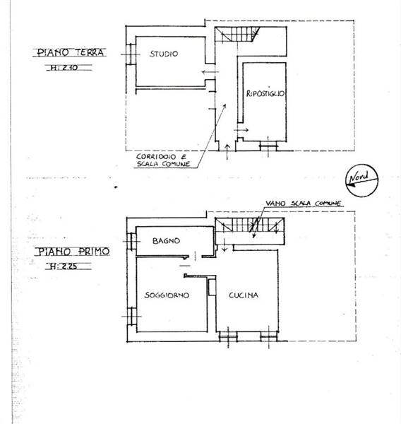
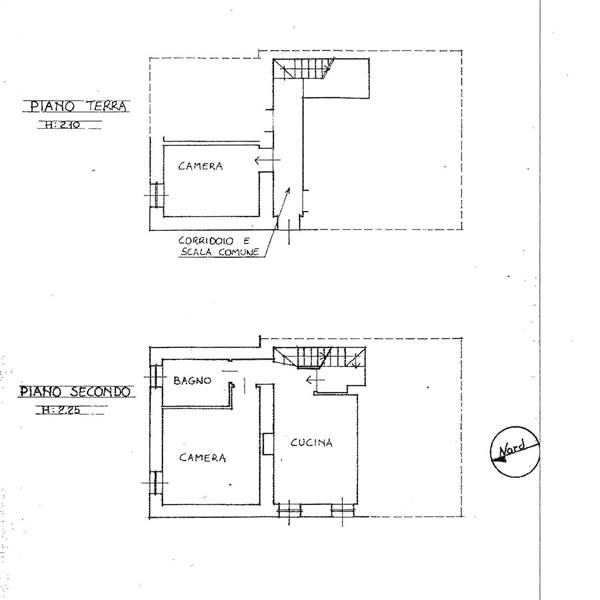
IN FRAZIONE. Casa indipendente da terra a tetto composta da due apartamenti indipendenti tra loro ristrutturati pochi anni fa. Al piano terra 3 locali uso lavanderia, magazzino/tavernetta con forno e lavabo. Al primo piano appartamento composto da: cucina, camera da letto e bagno al piano superiore troviamo il secondo appartamento composto da: cucina, camera da letto, bagno e spaziosa mansarda uso salotto con balconcino. Ogni appartamento è dotato di infissi con doppio vetro, cucina in muratura e legno utilizzate pochissimo, impianto di riscaldamento da completare con termosifoni e caldaia.
Informazioni generali
V/099
120 m2
5 locali
€ 35.000
Vendita
Casa singola
Gavi
08/04/2021
Accessori
Autonomo
Abitabile
si
si
