Casa singola abitabile a Gavi
86 m2
5 vani
€ 79.000
vendita Casa Indipendente Gavi
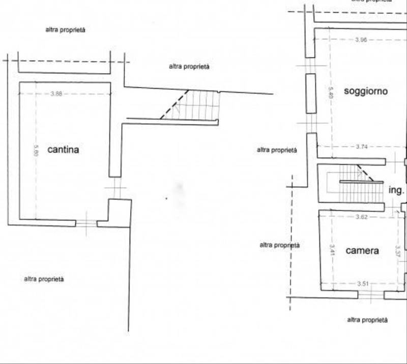
Casa indipendente da terra a tetto posta in centro paese; al piano terra ampia cantina, ingresso con porta blindata; al primo piano due camere con camino e forno, al secondo piano cucina, soggiorno, camera, balcone e bagno. L'immobile è stato recentemente ristrutturato e presenta impianti nuovi, infissi con vetro doppio in parte appena sostituiti e tetto rifatto isolato con fibra di legno.
Informazioni generali
V/67 (66541909)
86 m2
5 locali
€ 79.000
Vendita
Casa singola
Gavi
08/04/2021
Accessori
Autonomo
Abitabile
si
si
si
