Capannone industriale in Via Dell'Industria 5-7 a Castelplanio
Capannone / Fondo a Castelplanio
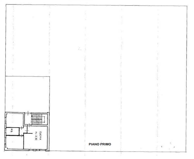
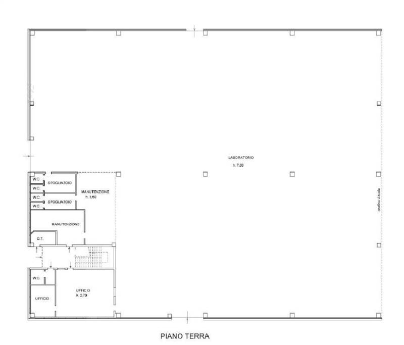
CASTELPLANIO (AN) - CAPANNONE INDUSTRIALE/ARTIGIANALE di circa 2462 mq con corte esterna di circa 2350 mq. L'immobile è costituito da un laboratorio di 2225 mq con un'altezza utile sottotrave di 7,0 m, inclusa porzione di circa 300 mq ove sono stati realizzati l'ingresso, la centrale termica, due uffici, un servizio igienico, un locale officina per la manutenzione interna, due spogliatoi divisi per sesso con i relativi servizi igienici; il resto della superficie è destinato alla produzione. Al piano primo, oltre ad una sala riunioni con accesso da scala interna, vi è l'alloggio del custode della superficie di 120 mq costituito da ingresso-soggiorno-cucina, disimpegno, due camere e un bagno. Il capannone è stato realizzato nel 1994 su una struttura portante in travi e pilastri in cemento armato prefabbricato, tamponamenti esterni in pannelli di cemento armato prefabbricato tinteggiati, con una copertura del tipo a falda. Nel 2002 è stato realizzato con la medesima tecnica costruttiva un ampliamento in aderenza di circa 1436 mq, anch'esso in vendita separatamente. (Rif. 6591). Acquisto soggetto ad IVA con possibilità di applicazione del REVERSE CHARGE Rif. DiLeoImmobiliare 6590...
Dove si trova
Informazioni generali
Accessori
Efficienza energetica
Richiesta informazioni all'agenzia
Richiedi informazioni all'agenzia
