Capannone industriale in Via Dell'Industria 5-7 a Castelplanio

2462 m2
10 vani
€ 565.000
FOTO 171456.png

FOTO 171456.png

FOTO 171456.png
FOTO 171245.png

FOTO 171245.png

FOTO 171245.png
FOTO 171206.png

FOTO 171206.png

FOTO 171206.png
FOTO 171300.png

FOTO 171300.png

FOTO 171300.png
FOTO 171312.png

FOTO 171312.png

FOTO 171312.png
FOTO 171321.png

FOTO 171321.png

FOTO 171321.png
FOTO 171332.png

FOTO 171332.png

FOTO 171332.png
FOTO 171427.png

FOTO 171427.png

FOTO 171427.png
FOTO 171511.png

FOTO 171511.png

FOTO 171511.png
FOTO 171646.png

FOTO 171646.png

FOTO 171646.png

Capannone / Fondo a Castelplanio

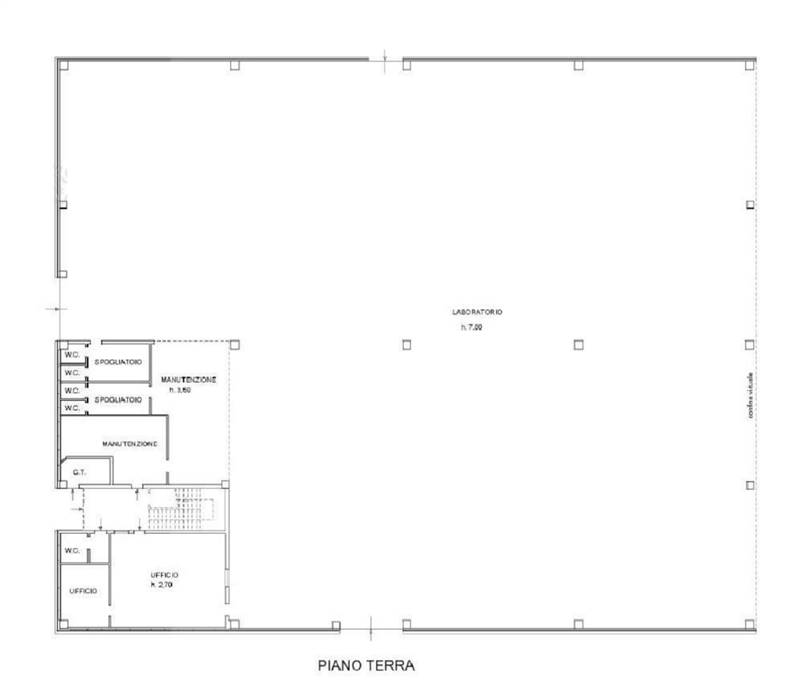
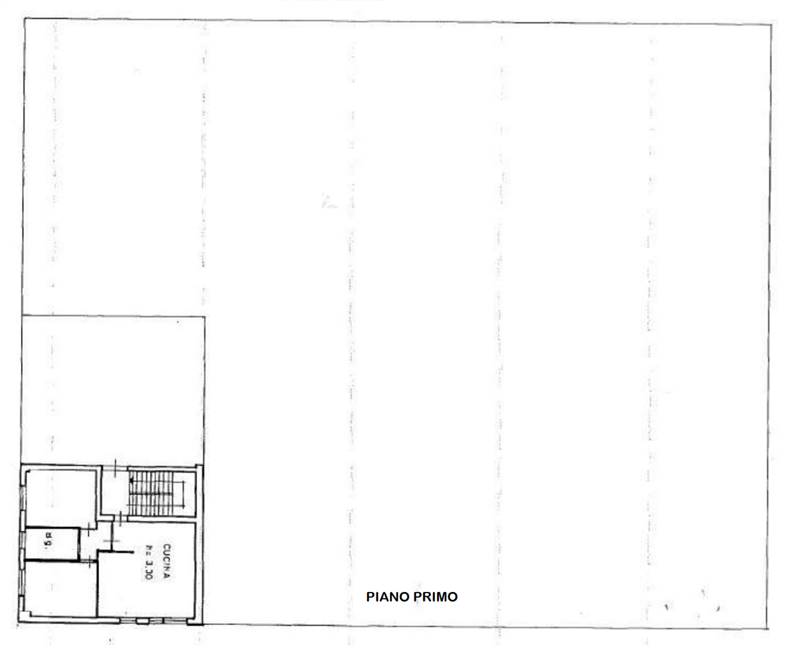
CASTELPLANIO (AN) - CAPANNONE INDUSTRIALE/ARTIGIANALE di circa 2462 mq con corte esterna di circa 2350 mq. L'immobile è costituito da un laboratorio di 2225 mq con un'altezza utile sottotrave di 7,0 m, inclusa porzione di circa 300 mq ove sono stati realizzati l'ingresso, la centrale termica, due uffici, un servizio igienico, un locale officina per la manutenzione interna, due spogliatoi divisi per sesso con i relativi servizi igienici; il resto della superficie è destinato alla produzione. Al piano primo, oltre ad una sala riunioni con accesso da scala interna, vi è l'alloggio del custode della superficie di 120 mq costituito da ingresso-soggiorno-cucina, disimpegno, due camere e un bagno. Il capannone è stato realizzato nel 1994 su una struttura portante in travi e pilastri in cemento armato prefabbricato, tamponamenti esterni in pannelli di cemento armato prefabbricato tinteggiati, con una copertura del tipo a falda. Nel 2002 è stato realizzato con la medesima tecnica costruttiva un ampliamento in aderenza di circa 1436 mq, anch'esso in vendita separatamente. (Rif. 6591). Acquisto soggetto ad IVA con possibilità di applicazione del REVERSE CHARGE Rif. DiLeoImmobiliare 6590...

Dove si trova

43.5015913.11538

Informazioni generali

6950
2462 m2
10 locali
€ 565.000
Vendita
Capannone industriale
Castelplanio
via dell'industria 5-7
Medio Signorile
1994
01/01/2026

Accessori

Terra, senza ascensore
Abitabile
si 

Efficienza energetica

G
G
175 kwh/m3 anno

Richiesta informazioni all'agenzia

Logo agenzia

Di Leo Immobiliare

via Pasubio 10 piano 2°
San Benedetto del Tronto (AP)

Autorizzazione al trattamento dei dati personali (Mostra)
Dichiaro di aver letto l'informativa sul trattamento dei dati personali e autorizzo espressamente BasicSoft S.r.l. gestore di RisorseImmobiliari.it al trattamento dei dati da me forniti. Accetto inoltre che i dati sopra inseriti siano trasmessi alle agenzie immobiliari interessate per essere da loro ricontattato. BasicSoft S.r.l. declina ogni responsabilità riguardo al trattamento di tali dati da parte delle agenzie immobiliari.
*) Riempire tutti i campi contrassegnati. Almeno uno dei campi telefono e/o cellulare devono essere riempiti
Contatta
RisorseImmobiliari.it © Copyright 2026 - Tutti i diritti sono riservati BasicSoft S.r.l. | C.F./P.IVA: 05269090485 | Reg. Imprese di Firenze | Cap.Soc. Euro 10.330,00 I.V.