Casa semi indipendente in Lungomare Levante a Senigallia
120 m2
4 vani
2 camere
2 bagni
€ 250.000
Vacanza Casa semi indipendente, SENIGALLIA
SENIGALLIA 3° FILA LUNGOMARE LEVANTE:
IN POSIZIONE RISERVATA E TRANQUILLA RISPETTO ALLA STRADA STATALE:
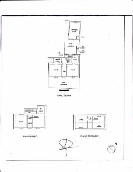
deliziosa casa di mq. 120 ca su due livelli - affiancata ai lati- con ingresso indipendente e corte di accesso mq. 28.
La proprietà è completata da un'ulteriore corte - sul retro- ,con accesso alla dependance di mq. 18, e dalla soffitta di mq. 60.
Attualmente divisa in : ingresso, cucina/tinello, soggiorno, bagno e lavanderia - al PT;
due ampie camere ,studio, 2° bagno e ripostiglio - al PIANO 1°
OTTIMA POSIZIONE, a 2 minuti dalla ROTONDA e dal CENTRO STORICO.
da rivedere.
Dove si trova
43.7195913.2152
Informazioni generali
RM65
120 m2
4 locali
Casa semi indipendente
Senigallia
lungomare LEVANTE
€ 1
Doppio
Civile
Libero
1960
31/05/2013
Accessori
2
2
Terra, senza ascensore
Autonomo
Abitabile
52 mq
60 mq
Richiesta informazioni all'agenzia
Richiedi informazioni all'agenzia
BoldriniMRImmobiliare
Lungomare G.Marconi n.25 Senigallia
60019
Senigallia
(AN)
P.IVA: 02616460420
