Negozio in Via Vittorio Veneto 76 a Fabriano
Locale commerciale a Fabriano
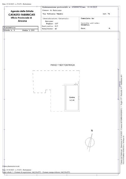
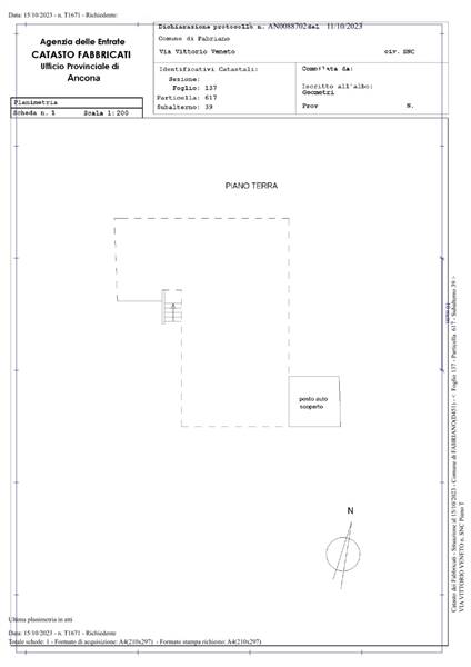
FABRIANO (AN) – LOCALE COMMERCIALE ideale anche per UFFICIO, con annessi deposito, cantina e posto auto scoperto. E' sito nel centro cittadino in zona residenziale ben servita da negozi e stazione ferroviaria. E' parte di più ampio condominio realizzato in muratura portante nei primi anni ’50. L'immobile è al piano terra ed ha una superficie di circa 48 mq suddivisi in due ambienti con altezza utile variabile da 3 a 4 metri. Attraverso una porta interna comunica con l’adiacente magazzino di circa 44 mq, anch’esso posto al piano terra con altezza interna di circa 3,80 m. Completano la proprietà una cantina di circa 39 mq con altezza interna di 2,40 m al piano seminterrato alla quale si accede dalla scala condominiale ed un posto auto esterno scoperto di circa 20 mq. Rif. 6733 DiLeoImmobiliare
...
Dove si trova
Informazioni generali
Accessori
Efficienza energetica
Planimetrie
Richiesta informazioni all'agenzia
Richiedi informazioni all'agenzia
