Trilocale in Vivere Verde a Senigallia
58 m2
3 vani
2 camere
1 bagno
box
ascensore
€ 235.000
Vendita Appartamento, Nuova costruzione, SENIGALLIA
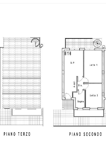
SENIGALLIA- VIVERE VERDE:
IN POSIZIONE TRANQUILLA E RISERVATA, A BREVE DISTANZA DAL CENTRO e A DUE PASSI DAL MARE, AL 2° ed ULTIMO PIANO con ASCENSORE:
appartamento trilocale di nuova costruzione ( soggiorno con zona cottura, disimpegno, due camere,bagno) + bel balcone- abitabile- con collegamento a bellissimo solarium di mq. 70 con predisposizione per cucina, parziale copertura in legno ed ulteriore ingresso indipendente.
Completamente arredato con gusto, l'immobile è completato dal garage di proprietà.
OTTIMO ANCHE COME PUNTO D'APPOGGIO PER LE VACANZE.
Dove si trova
43.7195913.2152
Informazioni generali
RM43
58 m2
3 locali
€ 235.000
Vendita
Appartamento
Senigallia
VIVERE VERDE
Singolo
Civile
Libero
2010
17/01/2013
Accessori
1
2
2 di 2, con ascensore
Autonomo
Nuova costruzione
si
18 mq
8 mq
70 mq
si
Efficienza energetica
D
D
Richiesta informazioni all'agenzia
Richiedi informazioni all'agenzia
BoldriniMRImmobiliare
Lungomare G.Marconi n.25 Senigallia
60019
Senigallia
(AN)
P.IVA: 02616460420
