Negozio abitabile a Colli del Tronto
Locale commerciale a Colli del Tronto
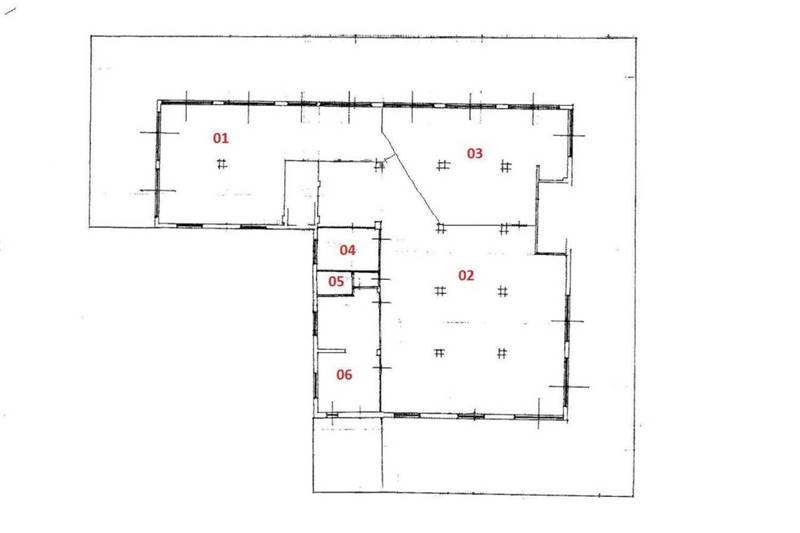
COLLI DEL TRONTO - Negozi con corte esclusiva, due garage e tre magazzini facenti parte di due fabbricati adiacenti in località “Villa San Giuseppe”. Superficie sviluppata lorda totale (corti escluse): 1888,50 mq, Aree pertinenziale esterne: 622 mq. L’area in cui è ubicata la struttura è posizionata in modo centrale lungo la Salaria, ed è sita a pochi chilometri di distanza dal sito di due svincoli di ingresso ed uscita al raccordo autostradale “Ascoli-Mare”. I due edifici, costruiti specularmente, risultano liberi sui quattro lati e si sviluppano su tre piani fuori terra più un piano interrato. Nel primo fabbricato si trovano un negozio con corte esclusiva e due magazzini, di cui uno al piano terra ed uno al piano sottostrada, mentre nel secondo fabbricato sono ubicati due garage ed un magazzino al piano sottostrada. I locali al piano terra sono accessibili tramite ingresso autonomo dalla corte di pertinenza, mentre i locali al piano interrato sono raggiungibili tramite rampa esterna e dotati di basculante d’ingresso. Le unità al piano terra necessitano di opere di manutenzione dovute alla presenza di umidità sul soffitto, probabilmente conseguente ad infiltrazioni dal terrazzo di copertura. Nel locale negozio sono presenti gli impianti elettrico, idrico e termico, quest’ultimo costituito da termoconvettori singoli a gas. Edificati tra il 1984 ed il 1987, sono dotati struttura in calcestruzzo armato, tamponamenti a cassa vuota in laterizio, solaio in latero cemento, copertura piana in parte a terrazza praticabile ed in parte a tetto con falde, infissi in alluminio per i locali a piano terra, saracinesche in lamiera dogata per i locali sottostrada, tramezzature in laterizio. Eventuali difformità dell'immobile saranno regolarizzate dalla proprietà. IMMOBILE ANCHE IN VENDITA AL PREZZO DI EURO 840.000,00. Rif. 5511 DiLeoImmobiliare
...
Dove si trova
Informazioni generali
Accessori
Efficienza energetica
Planimetrie
Richiesta informazioni all'agenzia
Richiedi informazioni all'agenzia
