Appartamento indipendente in nuova costruzione a Colli del Tronto
58 m2
2 vani
1 camera
box
€ 116.000
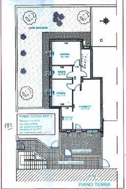
Appartamenti in costruzione con ottime rifiniture: pannelli solari e opzione di scelta del riscaldamento a pavimento o tradizionale. Tutti gli immobili hanno l'ingresso indipendente, giardino e corte esclusiva, e garage, con metrature tra i 58 mq. ed i 90 mq. con 1/2/3 camere a partire da 116.000,00 Euro.
Informazioni generali
Ap-1587
58 m2
2 locali
€ 116.000
Vendita
Appartamento indipendente
Colli del Tronto
11/09/2010
Accessori
1
Autonomo
Nuova costruzione
Efficienza energetica
G
G
Richiesta informazioni all'agenzia
Richiedi informazioni all'agenzia
Golden House Immobiliare
Corso G. Mazzini, 263
63039
San Benedetto del Tronto
(AP)
P.IVA: 01678950443
