Attività commerciale in Via Menocchia a Montefiore Dell'Aso
Maneggio - Centro Equestre a Montefiore dell'Aso
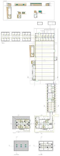
MONTEFIORE DELL'ASO - Centro Equestre Sportivo con possibilità di realizzare un'oasi di benessere naturale unica nel genere rivolta soprattutto alla formazione e al recupero di cavalli sportivi. Il Centro Equestre è tra i piu’ grandi del Centro Sud Italia e si sviluppa su 7 ettari di terreno. E' stato attivo sino al 2006. Si può realizzare, oltre ed insieme immobili esistenti, una struttura ricettiva di 500 mq con ristorante, unità abitative, annessi e servizi, un anello di galoppo di circa 950 metri, servizi e scuderie per 30 equidi, un maneggio coperto di 1650 mq e due ettari di paddocks. Il Centro e’ stato progettato per soddisfare il professionista, l’amatore e il turista attraverso una serie di iniziative ludico sportive e corsi che prevedono la formazione giovanile e programmi mirati alla salute e al benessere di cavalli e persone. Diritti di costruzione interamente assolti e progetto regolarmente presentato al Comune ed approvato. Disponibile business plan. La sua posizione strategica ne fa una location ideale anche per una clinica veterinaria....
Dove si trova
Informazioni generali
Accessori
Efficienza energetica
Planimetrie
Richiesta informazioni all'agenzia
Richiedi informazioni all'agenzia
