Casa singola ristrutturata in zona Casarica a Acquaviva Picena
Casa singola in Vendita di 280 mq a Acquaviva Picena
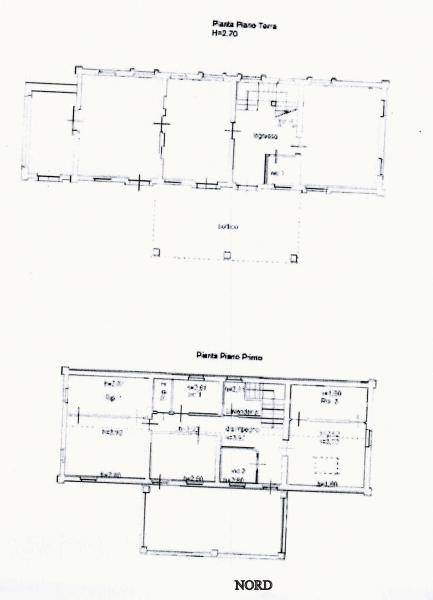
Casa colonica marchigiana di recentissima ristrutturazione eseguita "ad arte" su 2 livelli per complessivi mq.280, in zona residenziale agricola nel comune di Acquaviva Picena (Ap) a soli km.9 dal mare, vicinissima alla strada provinciale. Terreno/giardino adiacente per complessivi mq. 10.000 con varietà di essenze arboree. All'interno è rimasta volutamente senza rifiniture per permettere personalizzazioni all'acquirente. Ampio terrazzo di mq.40 circa sotto al quale troviamo un porticato con possibilità di essere trasformato in locale con nuova cubatura fruibile. 4 camere da letto, 3 bagni, ampio locale con vetrate a tutta parete. Scalinata interna in travertino ascolano, 1° piano con tetti con travi ed arcarecci a vista. Pavimentazione esterna in porfido. Cancello in ferro battuto all'ingresso della proprietà . Predisposizione impianti di allarme, aria condizionata, sauna e aspirazione centralizzata. - TRATTATIVA IN SEDE -
Informazioni generali
Accessori
Richiesta informazioni all'agenzia
Richiedi informazioni all'agenzia
