Casa singola in ottime condizioni a Castorano
Indipendente a Castorano
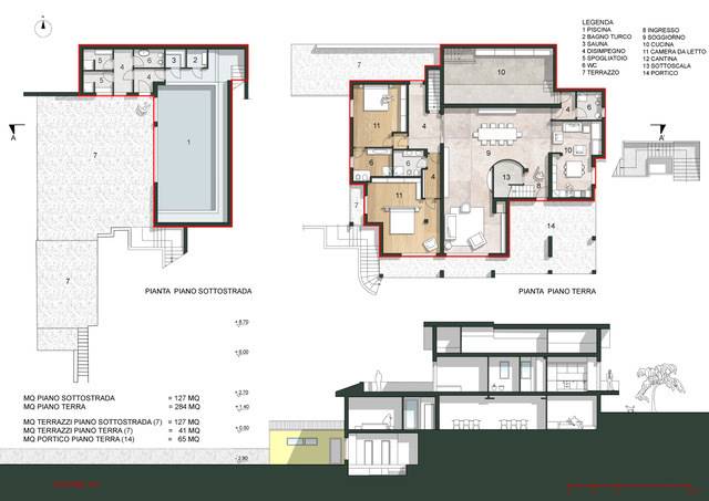
CASTORANO - In splendida posizione con suggestiva vista tra le montagne e le colline marchigiane, meravigliosa villa indipendente disposta su quattro livelli per complessivi mq 720 oltre esterni (terrazzi e porticato per mq totali 382) e giardino terreno per circa 1 ettaro. L'immobile ha un piano terra di circa 284 mq composto da ingresso, ampio soggiorno e sala da pranzo, cucina abitabile, bagno, due ampie camere matrimoniali di cui una con cabina armadio, tre bagni di cui uno di servizio della zona giorno e gli altri due nel reparto notte, cantina, un portico e due terrazzi per complessivi 106 mq. Al piano seminterrato, di circa 127 mq, vi sono una fantastica piscina, un bagno turco, la sauna, due spogliatoi ed un bagno. Dispone inoltre di vetrate che danno ad un solarium esterno di mq 127. Il piano primo (già predisposto con entrata indipendente) è composto da ingresso, ampio soggiorno, cucina abitabile, disimpegno, due camere matrimoniali, uno studio, due bagni e tre terrazzi per complessivi mq 149 mq. Il secondo e ultimo livello di mq 130 circa è attualmente adibito a soffitta, locale serbatoi e dispone di un bagno. La proprietà è completamente recintata e nel parco ha un campo da tennis. Il giardino è illuminato e irrigato. Immobile unico nel suo genere. Codice riferimento agenzia 4234....
Dove si trova
Informazioni generali
Accessori
Efficienza energetica
Richiesta informazioni all'agenzia
Richiedi informazioni all'agenzia
