Casa singola ristrutturata a Cossignano
Indipendente a Cossignano
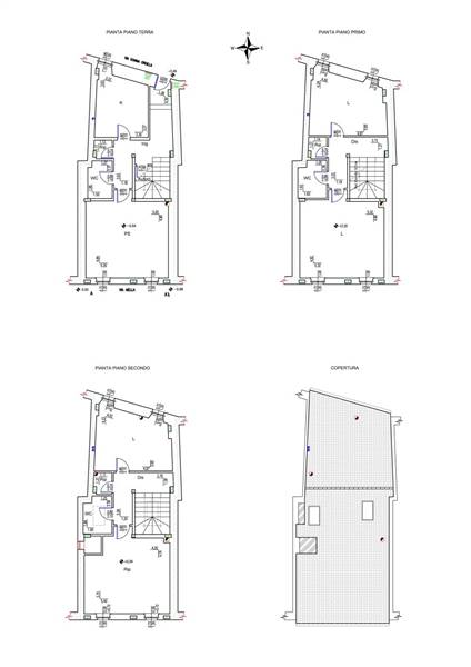
COSSIGNANO – Nell’incantevole borgo antico, casa cielo terra di circa 210 mq di recente ristrutturazione totale, composta da tre livelli fuori terra ognuno della superficie di circa 70 mq suddivisi in egual modo con disimpegno, piccolo ripostiglio, due locali e vano scale. Il piano terra è organizzato come zona giorno e i piani superiori come zona notte. Ogni piano ha un bagno a servizio. Divisibile facilmente anche in due o tre unità immobiliari (collocando la sola porta di piano), avendo gli impianti già tutti predisposti. Ha struttura in cemento armato, muratura in mattoni antichi da recupero faccia a vista all’esterno, pavimento piano terra in pianelle in cotto antico, piani primo e secondo in legno di rovere; scala rivestita in marmo travertino invecchiato con ringhiera in ferro battuto; rivestimenti bagni in ceramica monocottura formato 10x10 cm; sanitari sospesi e rubinetterie accessori dei bagni come nuovi; infissi esterni in legno Meranti, con inferriate di sicurezza al p.t., porte in castagno. Nel locale soggiorno del piano terra è presente uno stupendo camino in mattoni antichi e refrattari. Gli impianti di recentissima costruzione sono perfettamente a norma e il fabbricato risulta ben isolato termicamente e acusticamente. Rif 6293 DiLeoImmobiliare
...
Dove si trova
Informazioni generali
Accessori
Efficienza energetica
Planimetria
Richiesta informazioni all'agenzia
Richiedi informazioni all'agenzia
