Locale commerciale seminuovo in zona Centro Storico a Ascoli Piceno
180 m2
2 camere
2 bagni
€ 299.000
Locale commerciale in Vendita di 180 mq a Ascoli Piceno
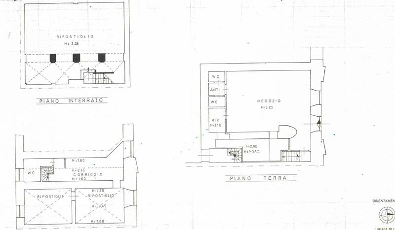
Ascoli Piceno, corso Mazzini, nelle immediate vicinanze di piazza del popolo, ad elevatissimo transito veicolare e pedonale, locale commerciale su due livelli di mq. 180 circa, sito al piano terra, con due vetrine su strada. L'immobile è in buone condizioni interne è suddiviso in ampio locale negozio di mq 90 circa con due bagni, due ripostagli con scala per accedere al piano interrrato dove si trova il magazzino di mq 90 circa più ripostiglio al primo piano. Idoneo per qualsiasi attività commerciale o ufficio.
Dove si trova
42.8550413.5779
Informazioni generali
3559
180 m2
€ 299.000
Vendita
Locale commerciale
Ascoli Piceno
Centro Storico
Libero
01/10/2024
Accessori
2
2
Terra, senza ascensore
Autonomo
Seminuovo
si
Efficienza energetica
G
G
Richiesta informazioni all'agenzia
Richiedi informazioni all'agenzia
Ciccarelli Daniela
Corso Trento e Trieste, 6B
63100
Ascoli Piceno
(AP)
P.IVA: 02005290446
