Negozio in Valtesino a Ripatransone
70 m2
2 vani
1 bagno
€ 200.000
Locale commerciale - 3 Vetrine a Ripatransone
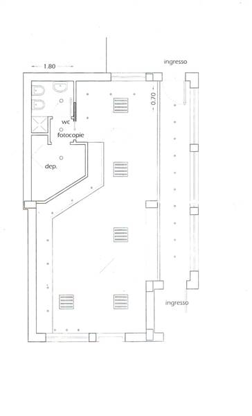
RIPATRANSONE – In quartiere residenziale di recente edificazione con presenza di scuole primarie, centro direzionale, commerciale e avviate attività quali studio medico, supermercato, bar, tabaccheria, vendesi locale commerciale di circa mq. 70 situato al piano terra di una palazzina di classe energetica D. Ha impianto di riscaldamento autonomo ed è dotato di ampie vetrine, un magazzino, un piccolo disimpegno ed un bagno. Attualmente è locato e regolamentato con contratto 6+6 . Rif. 3419.DiLeoImmobiliare.
Dove si trova
42.9731813.76528
Informazioni generali
3419
70 m2
2 locali
€ 200.000
Vendita
Negozio
Ripatransone
valtesino
Medio Signorile
18/10/2020
Accessori
1
Terra, senza ascensore
Autonomo
Abitabile
si
si
Efficienza energetica
D
D
26 kwh/m3 anno
Planimetrie
Richiesta informazioni all'agenzia
Richiedi informazioni all'agenzia
Di Leo Immobiliare
via Pasubio 10 piano 2°
63074
San Benedetto del Tronto
(AP)
P.IVA: 01941740449
