Negozio in Via Carducci 101 a San Benedetto del Tronto
Locale commerciale a San Benedetto del Tronto
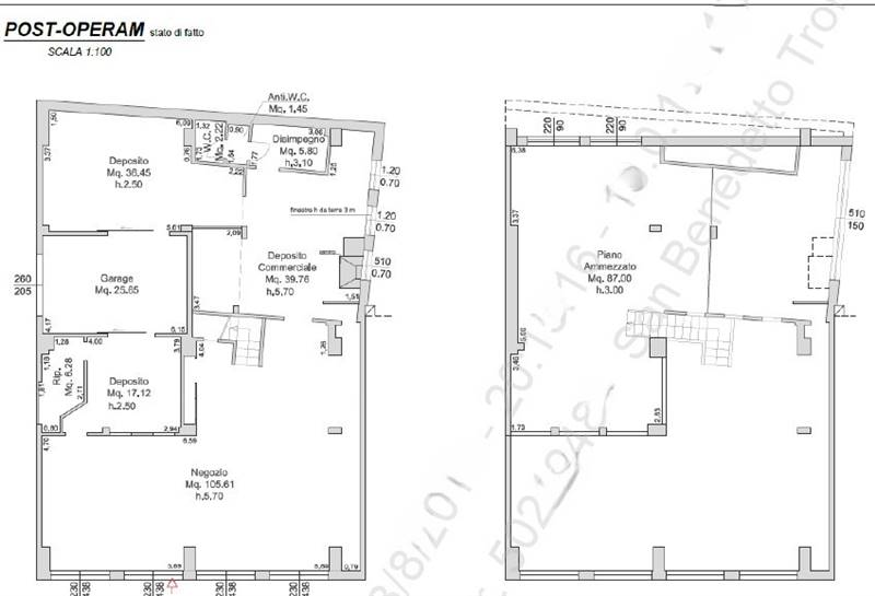
SAN BENEDETTO DEL TRONTO - Locale commerciale di ampia metratura con annesso ammezzato al piano terra oltre ad autorimessa adiacente al negozio. L'immobile si compone di un ambiente destinato a vendita ed uno a deposito, con bagno ed antibagno. Una scala interna porta ad un ammezzato in struttura metallica e solaio in lamiera grecata sovrastante l'intera superficie dell'autorimessa. Ha 4 vetrine ad arco su strada con porta d'ingresso e una porta basculante per il garage. E' presente pavimentazione in cemento in tutti i locali; Serramenti interni in legno bianco; ringhiera in ferro battuto sul soppalco. Rif. 6726 DiLeoImmobiliare...
Dove si trova
Informazioni generali
Accessori
Efficienza energetica
Planimetria
Richiesta informazioni all'agenzia
Richiedi informazioni all'agenzia
