Trilocale in Via Ischia a Grottammare
Appartamento in Vendita di 55 mq a Grottammare
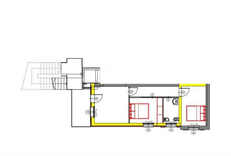
L'Agenzia Re Casa Immobiliare propone in vendita, appartamento di nuova costruzione sito in Grottammare, in zona servitissima.Appartamento 55 mq, piano terzo (attico), ingresso su ampio soggiorno, cucina a vista, due camere da letto di cui una matrimoniale e una doppia, un bagno con doccia e finestra, balcone da 4 mq.Esposizione: nord - est.Possibilità di posto auto e/o garage con prezzo da computare a parte. Il costo di costruzione del garage è detraibile al 50%.L'appartamento verrà consegnato con finiture scelte dall'acquirente su vasto capitolato a disposizione. L'unità immobiliare si presenta in ottime condizioni con portone d'ingresso blindato, riscaldamento a pavimento, condizionamento con idrosplit collegati alla pompa di calore su ogni stanza, sistema di ventilazione meccanica controllata con recupero di calore, finestre termoacustiche, persiane in alluminio ad alette orientabili, videocitofono e predisposizione impianto d'allarme.Il fabbricato ha struttura portante in muratura, ai piani terra, primo e secondo, mentre il terzo piano è in legno. Trattasi di ristrutturazione di primo livello, quindi saranno realizzati oltre al miglioramento sismico di 2 classi, anche lâefficientamento energetico.Tutte le unità saranno in classe energetica A4, alimentate con pompa di calore elettrica per la produzione di acqua calda e riscaldamento. La pompa di calore è di tipo reversibile previo aggiunta di deumidificatore o unità di trattamento aria può essere utilizzata come generatore per il raffrescamento.Sono opzionabili con lâappartamento sistemi di ventilazione e trattamento di aria che consentono la disinfezione tramite ozono, la filtrazione elettrostatica per virus polveri e batteri ed il free cooling.Eâ opzionabile impianto fotovoltaico con accumulo per una quasi totale autosufficienza energetica.Gli immobili sono progettati non solo per avere le massime prestazioni in termini di classe energetica, ma anche per raggiungere i più alti livelli di confort, secondo la UNI 7730.0.
