Trilocale in Via Papa Paolo vi a Capurso
Capurso: Libero 3 vani con box auto
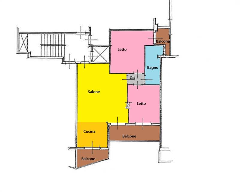
Nel comune di Capurso, proponiamo in vendita un appartamento di 90 mq situato a un piano alto di un edificio moderno, costruito nel 2000. L'immobile è servito da ascensore e offre un ambiente accogliente e funzionale. La disposizione interna comprende due camere da letto, ideali per una famiglia o per chi desidera uno spazio aggiuntivo per ospiti o studio. Il soggiorno, luminoso e ben distribuito, si affaccia su uno dei tre balconi, garantendo un'ottima ventilazione e luce naturale. La cucina è separata, offrendo praticità e comfort. Il bagno è dotato di tutti i servizi essenziali. Completa la proprietà un box auto, che aggiunge valore e comodità.
L'appartamento è inoltre dotato di un sistema di allarme con collegamento telefonico, assicurando tranquillità e sicurezza, videocitofono, zanzariere, tende da sole nuove, predisposizione aria condizionata.
Una soluzione abitativa che coniuga spazio, funzionalità e comfort in una posizione strategica.
Ape in valutazione
Dove si trova
Informazioni generali
Accessori
Richiesta informazioni all'agenzia
Richiedi informazioni all'agenzia
