Appartamento in Viale Giulio Cesare in zona Centrale a Bergamo
Appartamento in Vendita di 182 mq a Bergamo
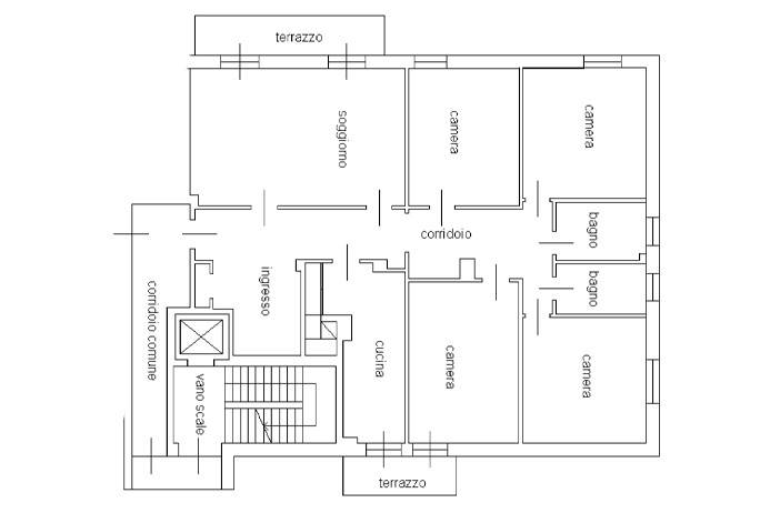
- BERGAMO CENTRALE _ VIALE GIULIO CESAREElegante appartamento penta locale piano alto panoramico di mq 165 dotato di 2 balconi di mq 12, ampia cantina, autorimessa e ulteriore autorimessa disponibile all'interno dello stabile.Immobile situato al piano 6 in posizione totalmente interna di edificio signorile risalente al 1958 dotato di ascensore ed in ottimo stato di manutenzione, in posizione particolamente panoramica e suggestiva con vista aperta verso città alta ed i colli di San Vigilio nella zona giorno e verso i colli della Maresana nella zona notte, affacciato su parco, distante pochi passi da Borgo Santa Caterina, da via San Tomaso e dall'Accademia Carrara, comodo per tutti i servizi del borgo raggiungibili a piedi nonchè a pochi passi dallo svincolo della superstrada di Bergamo.Internamente l'appartamento è composto da ampio ingresso con ampia area armadi ed ampio disimpegno, ampio soggiorno doppio con accesso al balcone con vista panoramica, cucina separata abitabile con accesso al balcone panoramico, nella zona notte, 4 camere da letto di ampie dimensioni e 2 bagni finestrati.L'immobile è libero e finestrato su 3 lati, si trova in buono stato d'uso, necessita di interventi di ammodernamento in base ai gusti ed alle necessità dell'acquirente, attualmente sono presenti pavimentazioni in parquet nelle camere da letto e ceramica nei bagni, riscaldamento centralizzato contabilizzato.La proprietà comprende appartamento, cantina ed ampia autorimessa singola di mq 18 con comodo accesso carrale da via Baioni.⬠330.000,00Spese condominiali ⬠3.000,00 annue comprensive di quota riscaldamento.Disponibile ulteriore autorimessa singola per ⬠25.000,00.CLASSE ENERGETICA: F 164,73 [Kwh/m2a]Vai all'annuncio: https://www.studio-valle.com/it/bergamo-centrale-viale-giulio-cesare/ STUDIO IMMOBILIARE VALLEFlaminia S.r.l.Real estate and investments24121 Bergamo - ItalyV.le Vitt. Emanuele II n. 65tel +39 035 231588WhatsApp: +39 3920190070www.studio-valle.cominfo@studio-valle.comFacebook: StudioImmobiliareValleTwitter: ValleRealEstateSkype: Valle-Real-Estate
Dove si trova
Informazioni generali
Accessori
Efficienza energetica
Planimetria
Richiesta informazioni all'agenzia
Richiedi informazioni all'agenzia
