Attico in zona Redona a Bergamo
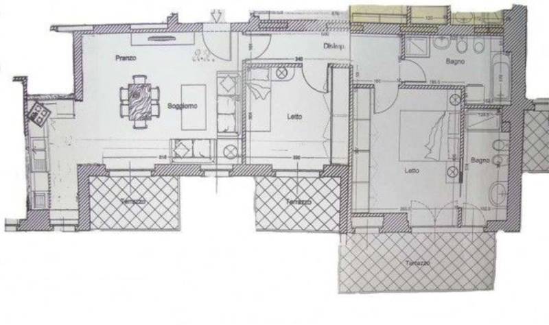
Bergamo confine con Gorle vendesi ampio trilocale mansardato nuovo. Posto al secondo e ultimo piano luminoso con ingresso, soggiorno, cucina separata, camera matrimoniale e seconda camera amppia, due bagni uno finestatrato altro con lucernario motorizzato. Ampi terrazzi vivibili. Travi in legno a vista, ceramica porcellanata, sanitari sospesi, serramenti in legno con vetro doppio (apertura vasistas) portoncini blindati, lucernari motorizzati riscaldamento a pavimento con caldaia a condensazione termoautonomi, predisopsizione aria condizionata e allarme ampi ripostigli soppalcati. Possibilità camino. Box a parte. Zona verde e tranquilla con mezzi a due passi dal centro. Consega prevista in tre mesi. Visita il sito.
Dove si trova
Informazioni generali
Accessori
Efficienza energetica
Richiesta informazioni all'agenzia
Richiedi informazioni all'agenzia
