Negozio ristrutturato in zona Centrale a Bergamo
Negozio in Vendita di 125 mq a Bergamo
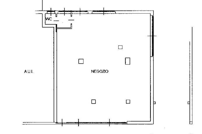
- BERGAMO SAN PAOLO _ ZONA VIA BROSETA PARCO DIAZNegozio fronte strada di mq 125 completamente ristrutturato dotato di 3 grandi vetrine e piccola autorimessa per Smart.L'immobile si colloca tra via Broseta e via Diaz nelle immediate vicinanza dell'ufficio postale a pochi passi da via Broseta e da Santa Lucia comodamente raggiungibile dal centro pedonale di Bergamo nonchè comodamente raggiugibile in automobile con parcheggi comunali in fronte.Lo spazio è composto da un totale e unico open space con altezze interne di 3,4 metri attualmente diviso da alcune pareti mobili che è possibile semplicemente smontare oltre bagno con anti bagno.L'immobile è stato completamente recentemente ristrutturato e si trova in condizioni perfette dotato di bagno ristrutturato, nuove vetrine, nuovo impianto elettrico con antifurto, riscaldamento contralizzato con contabilizzatori.La proprietà comprende anche piccolo box auto per auto di piccole dimensioni (tipo Smart).L'immobile si presta perfettamente anche per uso ufficio.Spese condominiali ⬠900,00 annue.⬠179.000,00CLASSE ENERGETICA: G 71,14 [Kwh/m3a]Vai all'annuncio: https://www.studio-valle.com/it/bergamo-santa-lucia-7/STUDIO IMMOBILIARE VALLEFlaminia S.r.l.Real estate and investments24121 Bergamo - ItalyV.le Vitt. Emanuele II n. 65tel +39 035 231588WhatsApp: +39 3920190070www.studio-valle.cominfo@studio-valle.comFacebook: StudioImmobiliareValleTwitter: ValleRealEstateSkype: Valle-Real-Estate
Dove si trova
Informazioni generali
Accessori
Efficienza energetica
Planimetria
Richiesta informazioni all'agenzia
Richiedi informazioni all'agenzia
