Negozio ristrutturato a Osio Sopra
Negozio in Vendita di 700 mq a Osio Sopra
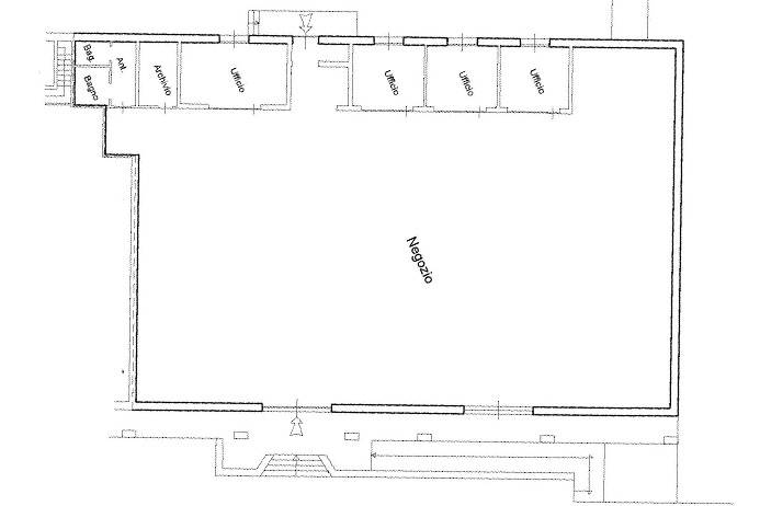
- OSIO SOPRA _ FRONTE STATALESpazio commerciale a reddito di mq 700 situato in posizione di grande visibilità direttamente affacciato su primaria via di comunicazione dotato di doppio ingresso indipendente al piano terreno oltre grande parcheggio privato ad uso pubblico sul fronte.Immobile situato nelle immediate vicinanze dell'area commerciale di Dalmine distante 15 minuti da Bergamo e 5 minuti dallo svincolo autostradale di Capriate.Spazio commerciale ad uso negozio di mq 700, totale open space senza pilastri dotato di area servizi, 5 uffici, ingresso indipendente sul fronte e sul retro ed ampio piazzale frontale ad uso parcheggio.L'immobile si trova in perfette condizioni d'uso.Immobile locato a primario conduttore con canone di locazione annuale ⬠63.000,00 + Iva per un rendimento pari al 6 % annuo lordo.Disponibili ulteriori spazi all'interno del complesso:1)Magazzino/laboratorio al piano seminterrato di mq 1370 totale open sapce attualmente al rustico da completare nelle rifiniture e negli impianti in base alla necessità di utilizzo, dotato di rampa di accesso carrale e piazzale di ingresso ad uso comune.Immobile libero.⬠1.060.000,00CLASSE ENERGETICA: In attesa di certificazione energeticaVai all'annuncio: http://www.studio-valle.com/it/osio-sopra-main-road-front-6/STUDIO IMMOBILIARE VALLEFlaminia S.r.l.Real estate and investments24121 Bergamo - ItalyV.le Vitt. Emanuele II n. 65tel +39 035 231588fax +39 035 232714www.studio-valle.cominfo@studio-valle.comFacebook: StudioImmobiliareValleTwitter: ValleRealEstateSkype: Valle-Real-Estate
Dove si trova
Informazioni generali
Accessori
Planimetria
Richiesta informazioni all'agenzia
Richiedi informazioni all'agenzia
