Villa in zona Malpensata a Bergamo
214 m2
4 vani
4 camere
3 bagni
box
€ 410.000
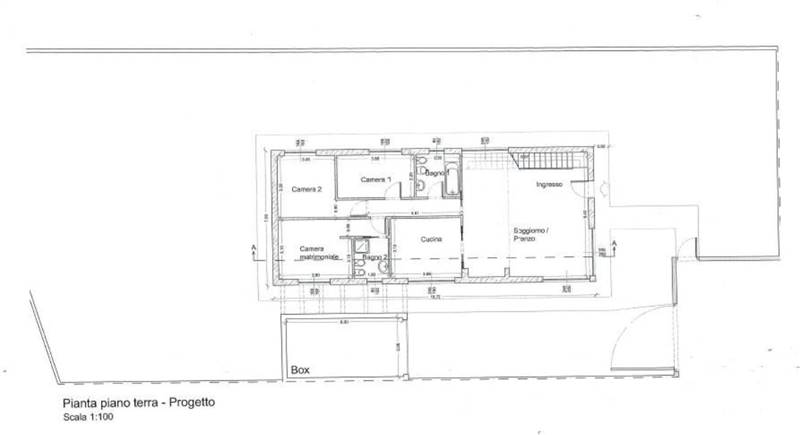
Bergamo vendesi spettacolare villa singola con giardino privato. Igresso indipendente, box e giardino di 550mq. Ampio soggiorno con vetrate sul giardino privato, cucina separata vivibilie, due camere da letto e bagno, al piano 1° camera matrimoniale, bagno e solatium.Costruzione in prefabricato di ultima generazione in cemento armato, finiture exstra capitolato con parquet e/o ceramica, serramenti in pvc con vetrocamera, sanitari sospesi e termoarredi, pannelli solari, pompa di calore, pannelli fotovoltaici, portoncino blindato, predisposizione allarme e aria condizionata.
Dove si trova
45.699469.700833
Informazioni generali
S33
214 m2
4 locali
€ 410.000
Vendita
Villa
Bergamo
Malpensata
2017
01/04/2017
Accessori
3
4
Efficienza energetica
A+
A+
Richiesta informazioni all'agenzia
Richiedi informazioni all'agenzia
