Villino da ristrutturare in zona San Vigilio a Bergamo
Villino in Vendita di 400 mq a Bergamo
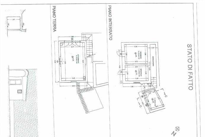
- BERGAMO CITTA ALTA _ SAN VIGILIOPrestigiosa villa d'epoca attualmente completamente da ristrutturare per un totale di mq 300 abitativi con possibilità di utilizzo del sottotetto ai fini abitativi.Proprietà composta da villa principale oltre 50 mq di dependance posizionata nelle estreme vicinanze dell'abitazione.Completano la proprietà ampio parco e bosco di 2000 mq circa.Possibile realizzazione ampia area rimesse per 3 vetture ampliabile.Possibile frazionamento in unità abitative indipendenti.⬠1.100.000,00CLASSE ENERGETICA: In attesa di certificazione energeticaVai all'annuncio: http://www.studio-valle.com/it/bergamo-old-city-san-vigilio-3/STUDIO IMMOBILIARE VALLEFlaminia S.r.l.Real estate and investments24121 Bergamo - ItalyV.le Vitt. Emanuele II n. 65tel +39 035 231588fax +39 035 232714www.studio-valle.cominfo@studio-valle.comFacebook: StudioImmobiliareValleTwitter: ValleRealEstateSkype: Valle-Real-Estate
Dove si trova
Informazioni generali
Accessori
Richiesta informazioni all'agenzia
Richiedi informazioni all'agenzia
