Bilocale a Ozzano Dell'Emilia
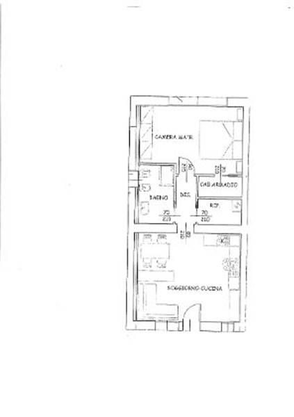
Rif. AV 937 unità immobiliare con entrata indipendente, completamente ristrutturata, situata in una posizione centrale e comoda a tutti i servizi. Con una superficie di 61 m², offre un ampio soggiorno con parete cottura, perfetto per accogliere amici e familiari, camera matrimoniale, bagno oltre ad un ulteriore locale ad uso lavanderia. Non mancano una cabina armadio spaziosa e una cantina per riporre tutto ciò di cui hai bisogno, oltre ad un posto auto coperto.L'unità immobiliare è licenziata ad uso ufficio, gli impianti sono predisposti per una civile abitazione, con attacchi per la cucina e prese elettriche per la zona notte.Situato al piano terra ha accesso adattato per persone con mobilità ridotta, questo appartamento è perfetto per chi cerca comfort e praticità. Con orientamento Est-Ovest, potrai godere di luce naturale durante tutto il giorno. Classe energetica G Prezzo €. 135.000/00.
Dove si trova
Informazioni generali
Accessori
Efficienza energetica
Richiesta informazioni all'agenzia
Richiedi informazioni all'agenzia
