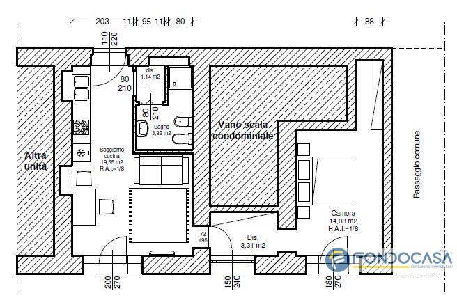
Bilocale in Via Ghidoni a Ospitaletto
55 m2
2 vani
1 camera
1 bagno
ascensore
€ 115.000
Appartamento in Vendita di 55 mq a Ospitaletto
AAA Ad Ospitaletto, zona centrale, a pochi passi dalla piazza proponiamo nuovissimo bilocale al piano terra. Soluzione moderna e funzionale inserita in contesto ordinato e tranquillo. Immobile disponibile a breve con possibilità scelta finiture. Ideale anche per investitori che intendono poi metterlo a reddito con locazione sicura ed immediata. Possibilità di abbinare box singolo o doppio (anche in affitto).Per maggiori informazioni e visite contattare Agenzia Fondocasa Ospitaletto 030.6370611 - cell. 345.8415204
Dove si trova
45.5558510.07168
Informazioni generali
Osp.016.RG
55 m2
2 locali
€ 115.000
Vendita
Appartamento
Ospitaletto
VIA GHIDONI
€ 30
Libero
2024
29/08/2024
Accessori
1
1
Terra, con ascensore
Autonomo
Seminuovo
si
si
Richiesta informazioni all'agenzia
Richiedi informazioni all'agenzia
