Bilocale in Via d. Ghidoni a Ospitaletto
Appartamento in Vendita di 62 mq a Ospitaletto
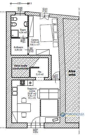
AAAAAA Ospitaletto a pochi passi dalla piazza e da tutti i principali servizi, proponiamo grazioso appartamento bilocale al piano terra inserito in contesto residenziale di recente costruzione. Soluzione comoda e funzionale per chi vuol vivere il centro del paese. Immobile attualmente al rustico con possibilità di acquistarlo finito, ristrutturato completamente a nuovo.Ottima soluzione anche come investimento. Locazione sicura e garantita.-Per visite e info AGENZIA IMMOBILIARE FONDOCASA OSPITALETTO Via Domenico Ghidoni 46 - Ospitaletto. Tel. 030.6370611 - 345/8415204-NOTA BENE: Alcuni dati descrittivi dell'immobile potrebbero essere solo approssimativi, esempio; spese di riscaldamento, spese condominiali, indirizzo, metrature, A. P. E. , pertanto verranno comunicate in modo completo telefonicamente o in fase di appuntamento, non costituendo elemento contrattuale.
Dove si trova
Informazioni generali
Accessori
Richiesta informazioni all'agenzia
Richiedi informazioni all'agenzia
