Trulli da ristrutturare a Ostuni
30 m2
3 vani
2 camere
€ 25.000
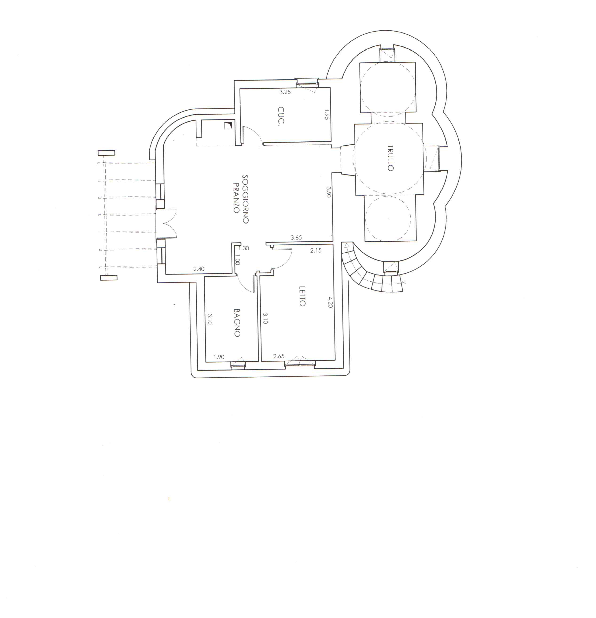
Trullo in agro di Ostuni da restaurare ed ampliare.
Sussiste progetto di ampliamento e restauro.
Terreno Mq.4.500 circa. Posizione panoramica.
Zona abitata.
Informazioni generali
A 1
30 m2
3 locali
€ 25.000
Vendita
Trulli
Ostuni
15/12/2006
Accessori
2
Terra, senza ascensore
Da ristrutturare
Efficienza energetica
G
G
Richiesta informazioni all'agenzia
Richiedi informazioni all'agenzia
Time Invest Immobiliare
Corso Cavour,29
72017
Ostuni
(BR)
P.IVA: MRS FNC 49M27 G187E
