Appartamento in Via del Redentore a Monserrato
Appartamento in Vendita di 426 mq a Monserrato
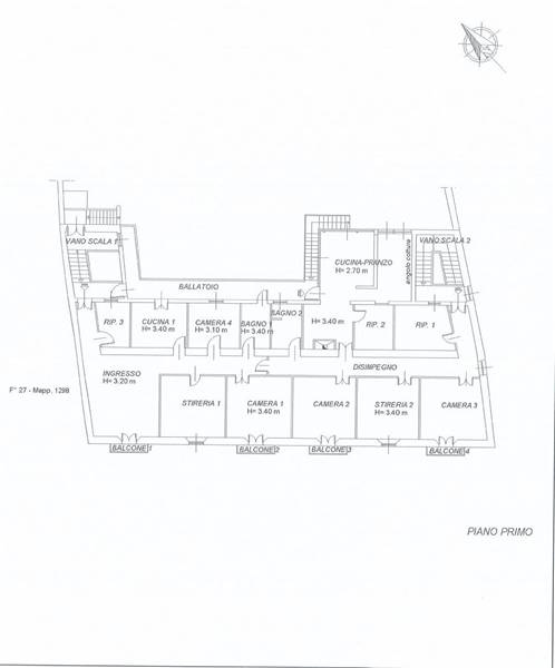
L'agenzia GREEN HOME immobiliare ha il piacere di proporre in VENDITA al centro di Monserrato, a pochi passi da tutti i servizi, un ampia semindipendente sita al primo e ultimo piano con ingresso indipendente.L'immobile è composto da una cucina abitabile, un soggiorno con camino, un disimpegno, tre ripostigli, sei camere matrimoniali, due camere singole, quattro balconi e una spaziosa veranda. La casa è dotata di un ampio cortile di 350 mq con passo carrabile. Ottimo investimento sia in funzione di un frazionamento in diverse unità immobiliari e sia come struttura ricettiva per affitti brevi vista la facilità di riposizionamento delle sue ampie metrature. L'immobile è conforme sia a livello urbanistico che catastale e pertanto mutuabile. Da ristrutturare. Ape in fase di definizione. Rif. GT04
Dove si trova
Informazioni generali
Accessori
Richiesta informazioni all'agenzia
Richiedi informazioni all'agenzia
