Trilocale in nuova costruzione a Quartu Sant'Elena
70 m2
3 vani
2 camere
box
€ 199.000
vendita Appartamento Quartu Sant'Elena
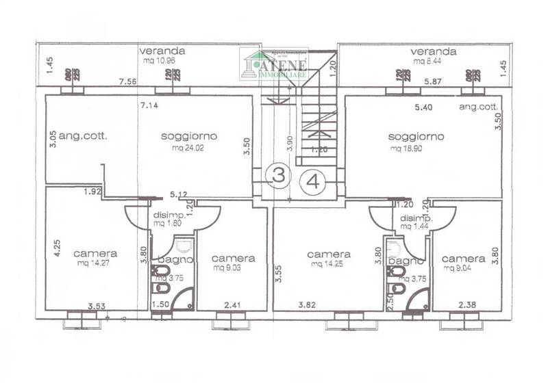
Quartu pressi viale Colombo nuova costruzione rifinito ultimo trilocale in piccolo condominio di soli 5 appartamenti. Disponibile al piano primo composto da soggiorno, angolo di cottura, 2 camere, bagno, veranda posto auto, pompe di calore, fotovoltaico, infissi in pvc, scaldabagno pompacalore. Possibilità scelta della pavimentazione. Consegna Settembre/Ottobre 2023. Da Euro 299.000,00 + iva Per maggiori informazioni contattare lo studio Atene Immobiliare 070.814460.
Informazioni generali
857
70 m2
3 locali
€ 199.000
Vendita
Appartamento
Quartu Sant'Elena
2023
07/08/2023
Accessori
2
1 di 1, senza ascensore
Autonomo
Nuova costruzione
Angolo cottura
si
si
Efficienza energetica
A2
A2
Richiesta informazioni all'agenzia
Richiedi informazioni all'agenzia
Atene Immobiliare
VIA VITTORIO EMANUELE 110
09045
Quartu Sant'Elena
(CA)
P.IVA: 02401680927
