Trilocale in nuova costruzione a Teverola
90 m2
3 vani
2 camere
2 bagni
box
ascensore
giardino
€ 120.000
Vendita Appartamento, Nuova costruzione, TEVEROLA
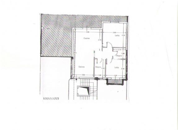
Appartamento di nuova costruzione in Teverola composto da: salone, cucina, 2 camere da letto, accessorio , ampio terrazzo, impianto di antifurto già installato, predisposizione aria condizionata, istallazione antenna satellitare e box di 28 mq. Ottime rifiniture.
Euro 120.000,00
Immobile non soggetto a certificazione energetica.
Dove si trova
40.9967414.20861
Informazioni generali
tev.120
90 m2
3 locali
€ 120.000
Vendita
Appartamento
Teverola
Libero
16/03/2016
Accessori
2
2
Autonomo
Nuova costruzione
Abitabile
si
si
si
Richiesta informazioni all'agenzia
Richiedi informazioni all'agenzia
