Appartamento ristrutturato in zona Via Garibaldi a Catania
Via Garibaldi, Centro Storico, Catania appartamento 6 vani ristrutturato
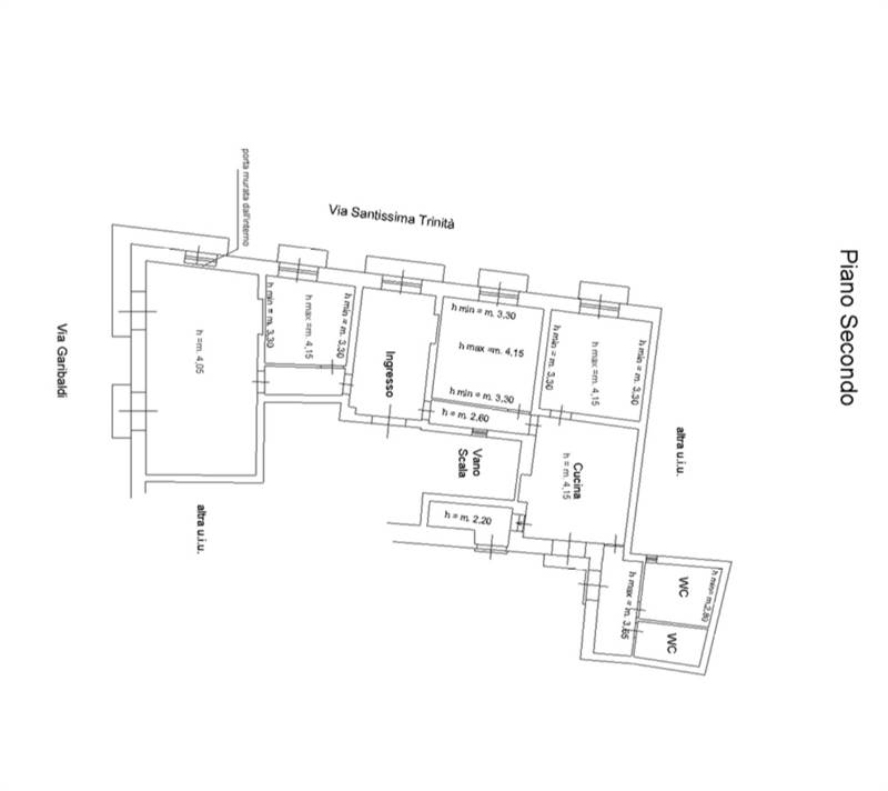
Nel cuore storico di Catania, in una posizione strategica e ben collegata, esattamente in Via Garibaldi, proponiamo la vendita di un bellissimo appartamento di 6 vani, angolare, elegantemente ristrutturato. L’immobile, posto al 2º piano (al momento senza ascensore) risalente a fine ottocento, così come il palazzo, sono stati ristrutturati nel 2019; nella ristrutturazione del palazzo è opportuno ricordare anche il rifacimento del tetto, l’appartamento è stato completamente ristrutturato con interventi che hanno compreso il rifacimento degli impianti, degli infissi e delle finiture interne, pur mantenendo gli elementi caratteristici dell’epoca, come i soffitti. L’appartamento è composto da una stanza d’ingresso, uno studio/camera, due camere da letto, un salone doppio di rappresentanza, una cucina, un comodo ripostiglio e due bagni; ogni stanza ha un balcone d’affaccio. Grazie alla disposizione degli ambienti e alla posizione centrale, l’immobile si presta sia come residenza privata, sia come “casa vacanze”, sia come studio professionale. La richiesta € 330.000 non trattabili COD 2704
Info 3409326063 anche Whatsapp
Dove si trova
Informazioni generali
Accessori
Efficienza energetica
Richiesta informazioni all'agenzia
Richiedi informazioni all'agenzia
