Appartamento in Viale Vittorio Venete in zona Viale Vittorio Veneto a Catania
Appartamento in vendita a Catania viale Vittorio Veneto
Catania - Eleganza e Lusso in Viale Vittorio Veneto
Descrizione:
Nel cuore di Catania, in una delle vie più prestigiose della città, proponiamo un esclusivo appartamento di 200 mq con rifiniture di lusso, situato al 5° piano di un edificio signorile dotato di doppio ascensore. L’immobile, mai abitato e in classe energetica A+, offre ambienti raffinati e un comfort abitativo senza compromessi.
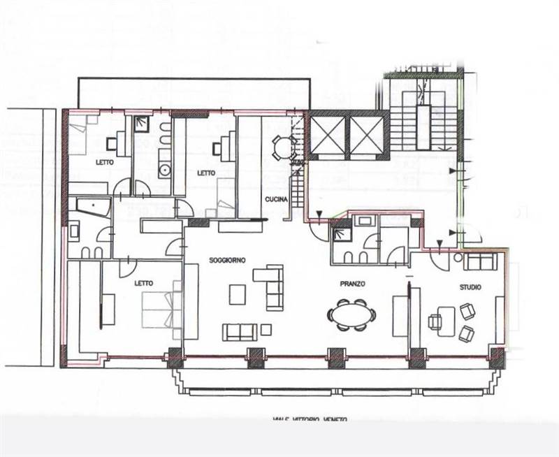
Composizione Interna:
• Salone triplo con ampio balcone terrazzato, perfetto per momenti di relax e ricevere ospiti, con affaccio su una vista suggestiva.
• Studio con ingresso indipendente, ideale per uso professionale o come angolo privato.
• Cucina abitabile di ampie dimensioni, pensata per chi ama la convivialità e la praticità.
• Zona notte composta da 3 camere da letto ben illuminate e silenziose, che garantiscono massima privacy.
• 3 bagni eleganti dotati di finiture moderne e materiali di qualità, oltre a una comoda zona lavanderia.
Caratteristiche Aggiuntive:
• Rifiniture di Lusso: Ogni dettaglio è stato curato per offrire un ambiente esclusivo e moderno.
• Climatizzazione e Riscaldamento Centralizzati: perfetto per garantire il massimo comfort in ogni stagione.
• Efficienza Energetica Classe A+: Massima efficienza e bassi consumi grazie all’isolamento termico e alla tecnologia di ultima generazione.
Posizione:
Situato in Viale Vittorio Veneto, l’appartamento gode di una posizione strategica vicino a tutti i principali servizi, scuole, negozi e aree verdi. Un’opportunità rara per chi desidera unire eleganza, comfort e una posizione di prestigio.
Caratteristiche Tecniche:
• Tipologia: Appartamento | Intera proprietà
• Contratto: Vendita
• Piano: 5 di 6 piani
• Ascensore: Sì, doppio
• Superficie: 200 m²
• Locali: Salone triplo, studio, cucina abitabile, 3 camere da letto
• Bagni: 3
• Terrazzo: ampio balcone terrazzato
• Riscaldamento e Climatizzazione: Centralizzati
Non perdere l’occasione di scoprire questo gioiello immobiliare. Contattaci al +39 3409326063 o via mail info@agenziaimmobiliare2d.it per organizzare una visita privata. Codice Annuncio: 2487
Dove si trova
Informazioni generali
Accessori
Efficienza energetica
Richiesta informazioni all'agenzia
Richiedi informazioni all'agenzia
