Bilocale in zona Via Leucatia - Via del Bosco a Catania
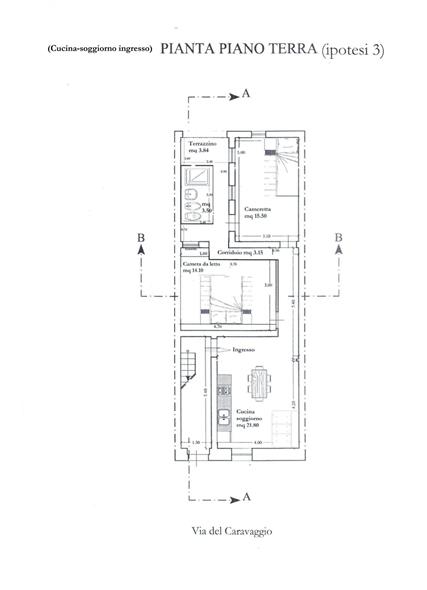
Barriera del Bosco, in mini condominio vendesi casa posta al piano terra di mq 100, sulla quale vanno recuperate due camere da letto, bagno e cucina abitabile con terrazzino a livello. L'immobile in esame è in fase di ristrutturazione, per tanto dalle foto pubblicate l'aspirante acquirente potrà avere la facoltà di decidere la distribuzione dei vani attraverso 3 ipotesi(vedi foto). L'immobile sarà consegnato sin da subito con le seguenti ristrutturazioni: rifacimento a nuovo impianto idrico ed elettrico; pavimentazione e rivestimenti; pareti interne ed infissi esterni; facciata esterna e tinteggiatura interna; installazione nuovi sanitari. Classe energetica G.Acquisizione dell'immobile senza ristrutturazione, allo stato attuale, € 65.000; compreso di ristrutturazione € 89.000 poco tratt.
Dove si trova
Informazioni generali
Accessori
Efficienza energetica
Richiesta informazioni all'agenzia
Richiedi informazioni all'agenzia
