Casa singola in Centro a Mirabella Imbaccari
A Mirabella Imbaccari #catania in zona centrale VENDESI intero stabile
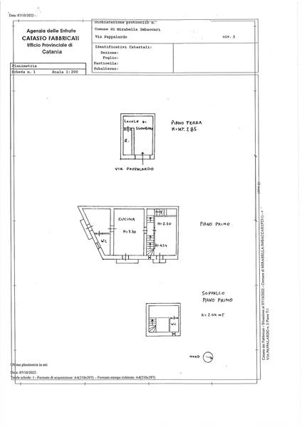
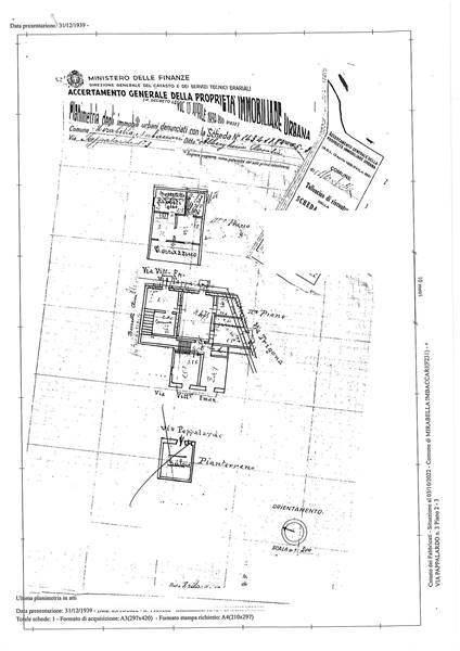
Sito in zona centrale di Mirabella Imbaccari, a breve distanza dalla Chiesa di Maria SS. delle Grazie, del palazzo comunale, del giardino pubblico, dove sorgono numerose abitazioni, attività commerciali ed artigianali, tabacchi, farmacie, bar. Intero stabile indipendente, composto al piano terra da garage di mq 21 con bagno e rifinito; primo piano appartamento composto da soggiorno, due camere da letto, due bagni; secondo piano appartamento disimpegno, soggiorno, tre camere da letto, cucina, due bagni; terzo piano soffitta rustica mq 50; terrazzo panoramico mq 20; balconi angolari. Primo piano in buone condizioni generali, secondo piano da sistemare ma presenza di elementi di pregio artistico come soffitti decorati, pavimentazione in cemento decorato dei primi '900, Classe energetica "G" EPgl 26,8190 Kwh/mq annui, migliorabile apportando alcune modifiche all'immobile con metodologia a risparmio energetico, usufruendo inoltre delle detrazioni fiscali ancora vigenti. COD 2668
In collaborazione con Mondo Casa Servizi Immobiliari - Caltagirone (CT)
Info 3409326063 anche Whatsapp
Dove si trova
Informazioni generali
Accessori
Efficienza energetica
Richiesta informazioni all'agenzia
Richiedi informazioni all'agenzia
