Ufficio in zona Borgo a Catania
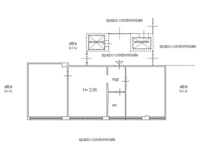
In Via Gustavo Vagliasindi proponiamo in vendita un luminoso ufficio di mq 85 circa. E' composto da un ingresso su disimpegno che acceda a due ampie stanze e un bagno. Un terzo vano completa l'immobile che gode grande luminosità e un gradevole affaccio sul giardinetto condominiale. L'ufficio ha gradevoli rifiniture con pavimento parquet laminato, riscaldamento e aria condizionata e si trova in buoni condizioni. L'immobile è catastato in A/10 (uffici) ed essendo al piano terra non ha delle barriere architettoniche. Ottimo per studio medico, fisioterapia o uffici professionali. Posti auto liberi all'intero del complesso residenziale.iemmeEUROPA di Natascha Jeuck srlCorso Italia 302, Catania.
Dove si trova
Informazioni generali
Accessori
Efficienza energetica
Richiesta informazioni all'agenzia
Richiedi informazioni all'agenzia
