Ufficio in zona Zona Centro a Catania
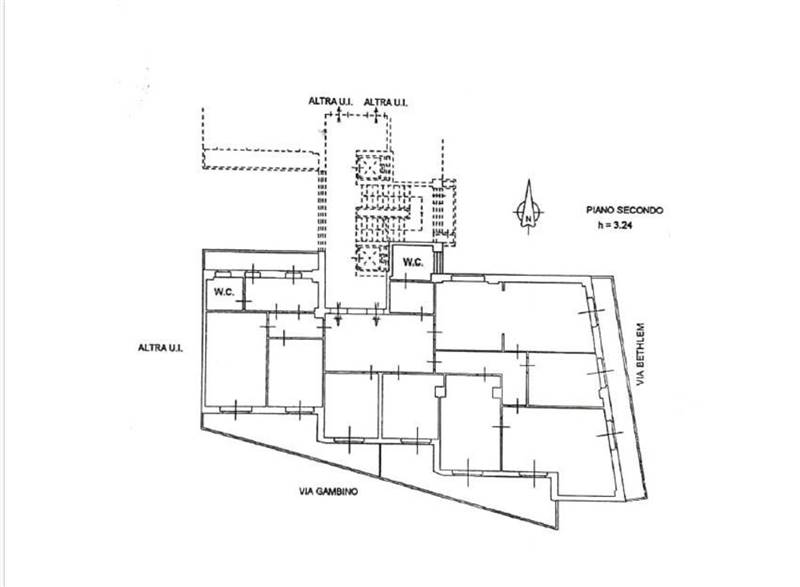
Vendesi prestigioso ufficio di 247 Mq situato in Corso Sicilia. Questa unità immobiliare si trova al secondo piano di un edificio ed è composto da 9 vani, ideali per organizzare gli spazi di lavoro in maniera razionale e funzionale. Sono presenti anche una ampia reception, sala attesa, 2 bagni, archivi, garantendo la massima comodità per i dipendenti e i visitatori.L' immobile è in buone condizioni e dispone di riscaldamento autonomo e pompe di calore per il fresco. Lo stabile gode di un ampio ed elegante androne ed è dotato di ascensore, agevolando l'accesso ai piani superiori per tutti gli utenti.Ideale per coloro che cercano un ufficio spazioso, ben tenuto e pronto per essere utilizzato. Con le sue numerose stanze e sale riunioni, può facilmente soddisfare le esigenze di qualsiasi attività professionale. Non perdere l'opportunità di avere la tua sede in una posizione strategica nel cuore di Catania, servito anche da mezzi di trasporto pubblico quale la metro che arriva esattamente sotto l'edificio.iemmeEUROPA di Natascha Jeuck srl Corso Italia 302, Catania o.
Dove si trova
Informazioni generali
Accessori
Efficienza energetica
Richiesta informazioni all'agenzia
Richiedi informazioni all'agenzia
