Quadrilocale in zona Montepaone Lido a Montepaone
75 m2
4 vani
2 camere
1 bagno
€ 130.000
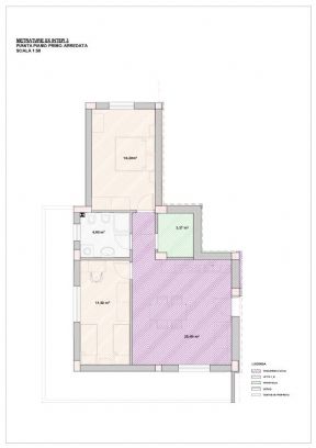
Montepaone lido: via Cavour - vendesi - appartamento al primo piano in costruzione di mq 75 ca composto da ingresso, soggiorno/cucina, 2 camere, bagno, ripostiglio, 2 balconi.
Dove si trova
38.7190516.53133
Informazioni generali
397
75 m2
4 locali
€ 130.000
Vendita
Appartamento
Montepaone
Montepaone Lido
Libero
08/10/2012
Accessori
1
2
Autonomo
Angolo cottura
Efficienza energetica
G
G
Richiesta informazioni all'agenzia
Richiedi informazioni all'agenzia
AS Immobiliare
via nazionale, 56
88060
Montepaone
(CZ)
P.IVA: 02955590795
