Terreno edificabile in Via Luigi de Crecchio a Chieti
Terreno edificabile in Vendita di 500 mq a Chieti
Terreno edificabile in vendita a Chieti Scalo, zona collinare, ricadente in comparto edilizio con possibilità di realizzare villette singole, mono e bifamigliare su 4 livelli con ampio giardino esclusivo da un prezzo minimo di acquisto di quota di proprietà indivisa del comparto da â¬. 85.000,00 ad â¬. 120.000,00 oltre oneri di urbanizzazione, monetizzazioni, costo di costruzione e oneri di progettazioni per il professionista...
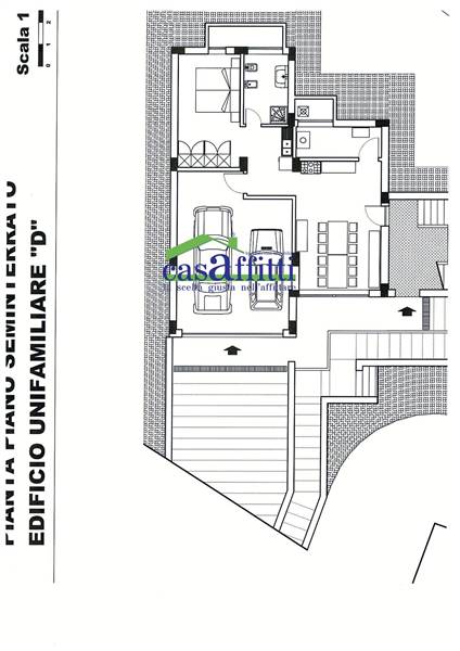
Le tipologie sono già state approvate dal Comune di Chieti con: Piano Interrato destinato a Garage e taverna con servizio igienico; Piano Terra con Cucina Abitabile, Soggiorno-Pranzo e uscita su ampio terrazzo e giardino, Bagno e camera; Piano Primo con 2/3 camere da letto balconate e bagno; Piano Sottotetto con ampio locale e servizio igienico.
Gli immobili sono da realizzare a carico dell'acquirente con possibilità di personalizzare tutta la distribuzione interna, l'acquisto è del solo lotto di terreno edificabile con la tipologia della scelta dell villetta.
Queste villette in vendita a Chieti Scalo in zona collinare e posizionata a soli mt. 700 dal centro, ricadono in una nuova zona di sviluppo edilizio residenziale e servita.
Per ulteriori informazioni non esitate di contattare l'agenzia per dettagli più approfondite.
Dove si trova
Informazioni generali
Video
Richiesta informazioni all'agenzia
Richiedi informazioni all'agenzia
