Trilocale a Locate Varesino
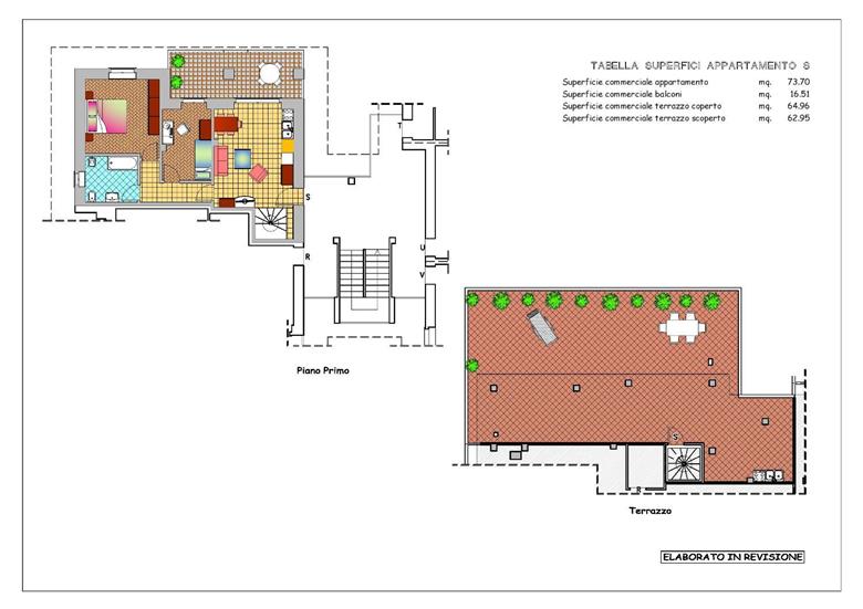
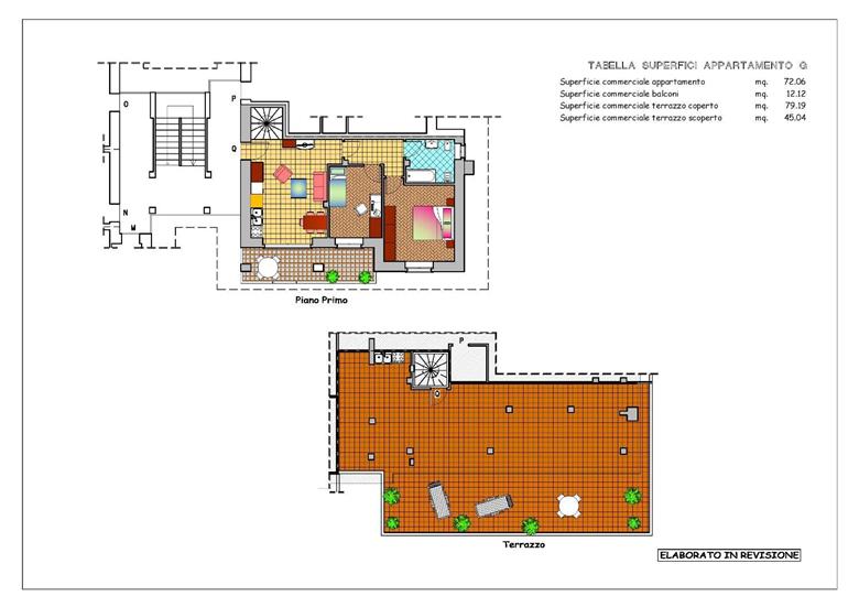
In elegante palazzina rifinita mattoni a vista di recentissima costruzione in classe energetica B, servita nelle vicinanze da stazione Trenord, scuola materna, scuola elementare, servizio bus scuola media Mozzate, supermercato, negozi di generi alimentari, proponiamo appartamenti di 3 locali e servizio con cucina a vista su ampio soggiorno o cucina separata, doppia esposizione solare su terrazzini vivibili nei periodi estivi.Gli appartamenti sono tutti posti al piano primo senza ascensore ai quali si accede tramite importante scala condominiale esterna.Internamente dalla zona giorno di tutte le unità abitative si accede tramite scala su ampio terrazzo soprastante parte coperto e parte scoperto, prettamente panoramico data l'esposizione su una ampia campagna agricola.I terrazzi come metrature partiamo da un minimo di 98 mq fino a 124 mq.Finiture interne da personalizzare, serramenti legno doppio vetro a basso emissivo, persiane in legno.
Dove si trova
Informazioni generali
Accessori
Efficienza energetica
Richiesta informazioni all'agenzia
Richiedi informazioni all'agenzia
