Villa a schiera a Carugo
121 m2
3 vani
2 camere
3 bagni
box
€ 285.000
Villa a schiera in Vendita di 121 mq a Carugo
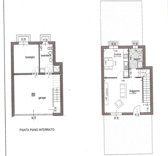
Arosio : In zona residenziale a confine con Carugo Vi proponiamo in fase di ultimazione porzione di villa a schiera con giardino, composta da tre locali con tripli servizi per un totale di metri quadrati 121 , possibilità di scelta delle rifiniture interne da ampio capitolato, box doppio. CLASSE ENERGETICA 'B' INDICE PRESTAZIONE ENERGETICA 55,09 kWh/ mq a .Rif. 143
Disponiamo nello stesso contesto di soluzione di quattro locali con lastrico solare e box doppio. CLASSE ENERGETICA 'B' INDICE PRESTAZIONE ENERGETICA 54,97 kWh/ mq a .Rif. 138
Informazioni generali
143_11
121 m2
3 locali
€ 285.000
Vendita
Villa a schiera
Carugo
Libero
20/11/2015
Accessori
3
2
Autonomo
Abitabile
si
si
si
Efficienza energetica
B
B
55,09 kwh/m2 anno
Richiesta informazioni all'agenzia
Richiedi informazioni all'agenzia
Edil House
4 novembre 11
22066
Mariano Comense
(CO)
P.IVA: 03039240134
