Quadrilocale abitabile a Borgo San Dalmazzo
vendita Appartamento Borgo San Dalmazzo
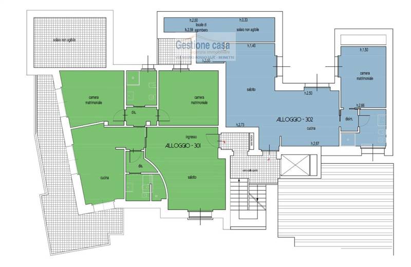
BORGO SAN DALMAZZO: in frazione Beguda, in zona centrale comoda a tutti i servizi, proponiamo in vendita nuovi appartamenti quadrilocali al secondo piano con ascensore. Le soluzioni disponibili a partire dalla cifra di 175.000 €, sono composti internamente da ampio soggiorno, cucina abitabile, due camere da letto e doppi servizi. Tutte le stanze godono di ottima esposizione e di ampie porte finestre che affacciano sul balcone. A completare, la cantina e possibilità di acquistare a parte box auto al piano interrato. Serramenti di ultima generazione in doppio vetro legno e riscaldamento semi-autonomo con le termovalvole. Per soluzioni simili visionare il nostro sito o i social Facebook ed Instagram. Per maggiori informazioni contattare il numero 0171385380 o recarsi direttamente presso la nostra agenzia in Via Mario Rossi 55C a Beinette.
