Azienda agricola in C.da Calcinari a Petritoli
Azienda Agricola a Petritoli
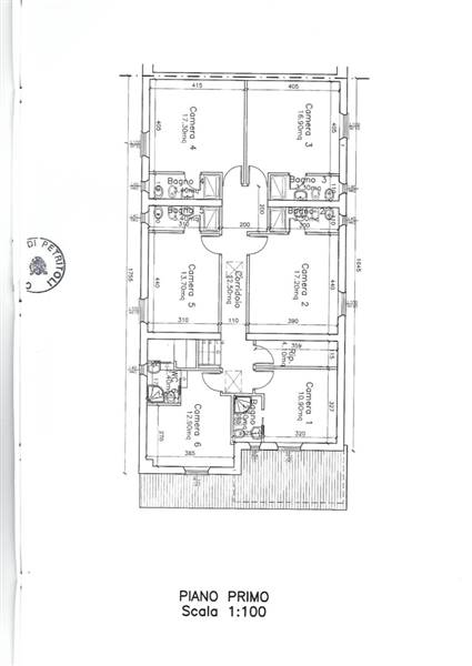
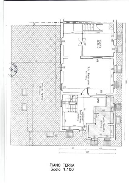
PETRITOLI - Avviata azienda agricola zootecnica biologica su 18 ettari di terreno, situata all'interno di un'area naturalistica dove insiste attività di allevamento, produzione e trasformazione suini oltre che di agriturismo. L'azienda dispone di un laboratorio per lavorazione e trasformazioni carni di circa 450 mq a bollino CEE; 4 capannoni uso zootecnico per un totale di 1200 mq; 2 fabbricati rurali di cui uno di 120 mq e uno di 130 mq; una sorgente d'acqua naturale con una emungitura per 200 mc al giorno; una porcilaia con capacità di 200 capi; un pollaio con capacità di 2000 galletti; recinti per cinghiali e vitelli; un mulino/mangimificio; un salumificio. L’attività di agriturismo è svolta all’interno di un antico casolare di campagna di circa 800 mq scrupolosamente restaurato nel rispetto dello stile architettonico tradizionale e dell’ambiente circostante. La struttura ha 70 posti interni a sedere e 50 posti esterni oltre 6 camere con 20 posti letto. Le tecniche di gestione dell'allevamento, praticato allo stato semibrado, tengono conto dei fabbisogni fisiologici ed etologici degli animali e sono totalmente esclusi dalla loro alimentazione prodotti chimici di sintesi. Rif.1650 - DiLeoImmobiliare
...
Dove si trova
Informazioni generali
Richiesta informazioni all'agenzia
Richiedi informazioni all'agenzia
