Trilocale in Gramsci a Porto San Giorgio
Appartamento in Vendita di 81 mq a Porto San Giorgio
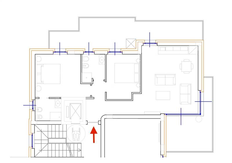
Porto San Giorgio, in primissima fila mare, splendido appartamento posto all'interno di un elegante e moderno condominio di nuova costruzione caratterizzato da una particolare cura nell'estetica e nelle finiture. L'appartamento, posto al piano primo e dotato di magnifica vista mare, si sviluppa su circa 81 mq ed è composto di ingresso, soggiorno con angolo cottura, una camera da letto matrimoniale, una camera doppia, due bagni ed ampi terrazzi vivibili per circa 38 mq totali. Completa la proprietà un comodo posto auto privato al piano terra ed un ripostiglio al piano interrato. L'immobile è realizzato con le più moderne tecniche costruttive e risulta dotato di impiantistica all'avanguardia mirata al massimo risparmio energetico e confort abitativo; la soluzione inoltre offre la possibilità di personalizzare le finiture interne. Localizzato in ottima posizione, risulta ideale sia per un utilizzo residenziale che per utilizzo estivo. Possibilità di interessante recupero fiscale a vantaggio della parte acquirente.
Dove si trova
Informazioni generali
Accessori
Efficienza energetica
Richiesta informazioni all'agenzia
Richiedi informazioni all'agenzia
