Villino in Via Pompeiana a Fermo
Villino in Vendita di 175 mq a Fermo
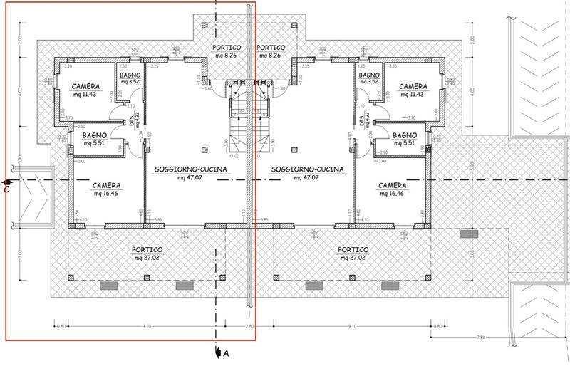
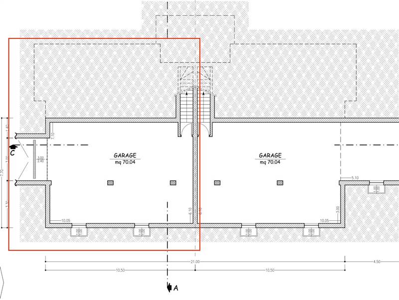
In posizione collinare e panoramica, villino bifamiliare allo stato grezzo delle dimensioni totali di circa 175 mq, dislocati su tre livelli, composto di: piano seminterrato, delle dimensioni di circa 70 mq, destinato a locale garage e/o taverna-rustico; piano terra, a destinazione abitativa e delle dimensioni di circa 100 mq, composto di ampio soggiorno con angolo cottura, 2/3 camere da letto e due bagni; piano secondo, delle dimensioni di circa 5 mq, costituito da un locale tecnico dotato di terrazzino. Completa la proprietà dei portici al servizio dell'abitazione ed un ampia corte perimetrale, in parte pavimentata ed in parte destinata giardino privato. Il fabbricato viene venduto allo stato grezzo, con la possibilità di totale personalizzazione sia nella realizzazione interna, che nelle finiture. Localizzato in zona ottima posizione, molto assolata e caratterizzata da uno splendido panorama sulla vallata e colline circostanti.Possibilità di acquisto del villino adiacente con prezzo da computare a parte.
Informazioni generali
Accessori
Richiesta informazioni all'agenzia
Richiedi informazioni all'agenzia
