Villino in Via Pompeiana a Fermo
Villino in Vendita di 425 mq a Fermo
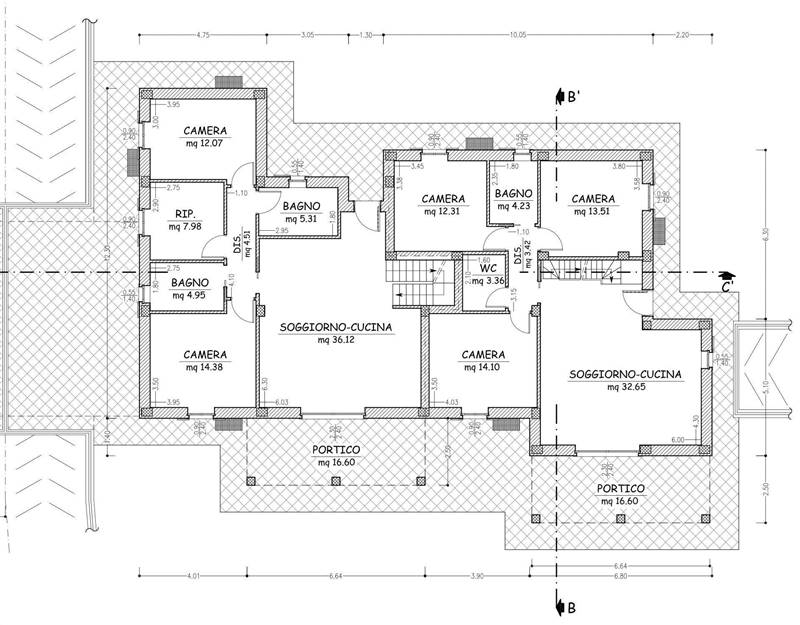
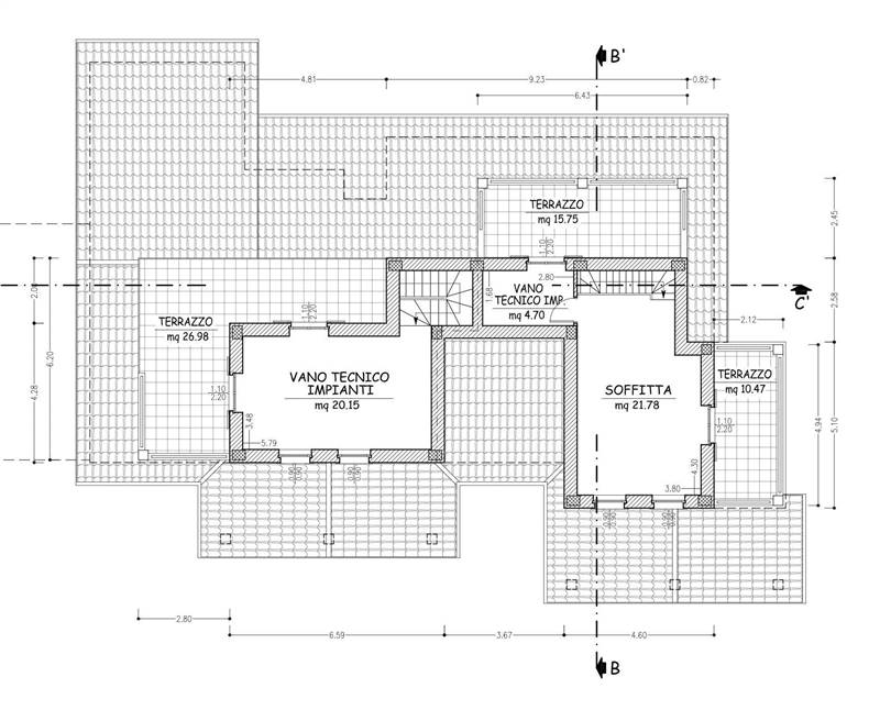
In splendida posizione collinare e panoramica, villino indipendente allo stato grezzo delle dimensioni totali di circa 425 mq, dislocati su tre livelli, composto di: piano seminterrato, delle dimensioni di circa 190 mq, destinato a locale garage e/o taverna-rustico; piano terra, delle dimensioni di ulteriori circa 190 mq, destinato ad abitazione completa di zone living, camere e bagni; piano secondo, delle dimensioni di circa 45 mq, costituito da soffitta e locali tecnici dotati di terrazzini. Completa la proprietà un ampio porticato al servizio dell'abitazione ed un corte perimetrale, in parte pavimentata ed in parte destinata a giardino privato. L'immobile viene venduto in corso di costruzione ed allo stato grezzo, risulta progettualmente predisposto per la realizzazione di 2 unità abitative distinte tra loro ed offre la possibilità di una totale personalizzazione sia nella suddivisione interna, che nelle finiture. Localizzato in ottima posizione, molto assolata e caratterizzata da uno splendido panorama sulla vallata e colline circostanti.
Informazioni generali
Accessori
Richiesta informazioni all'agenzia
Richiedi informazioni all'agenzia
