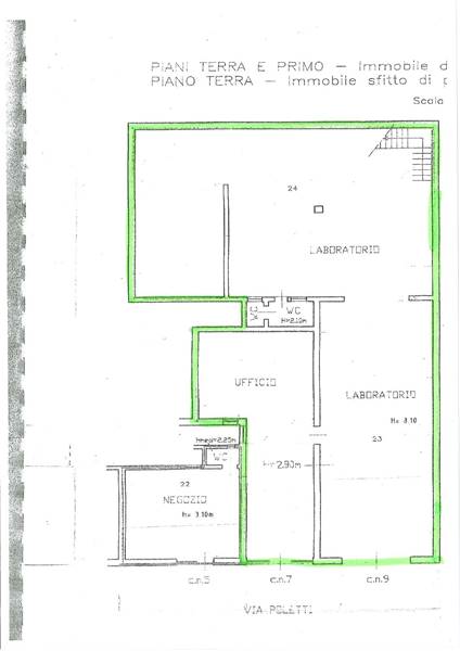
Attività commerciale in Via Poletti in zona Via Bologna a Ferrara
300 m2
4 camere
1 bagno
€ 130.000
Attività commerciale in Vendita di 300 mq a Ferrara
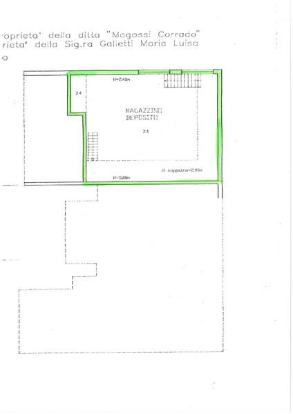
Via Poletti, angolo Via Bologna, vendiamo ufficio con laboratorio/deposito di circa 300 mq. distribuito su due livelli.Ottima posizione in strada di grande passaggio, comodo al centro città , adatto ad attività che necessitano di punto vendita e magazzino.
Dove si trova
44.8254511.60988
Informazioni generali
504
300 m2
€ 130.000
Vendita
Attività commerciale
Ferrara
Via Bologna
Via Poletti
Libero
10/07/2024
Accessori
1
4
Terra, senza ascensore
Autonomo
Seminuovo
si
Richiesta informazioni all'agenzia
Richiedi informazioni all'agenzia
