Quadrilocale in Stazione in zona Saletta - cà Matte a Copparo
82 m2
4 vani
2 camere
1 bagno
€ 58.000
Appartamento in Vendita di 82 mq a Copparo
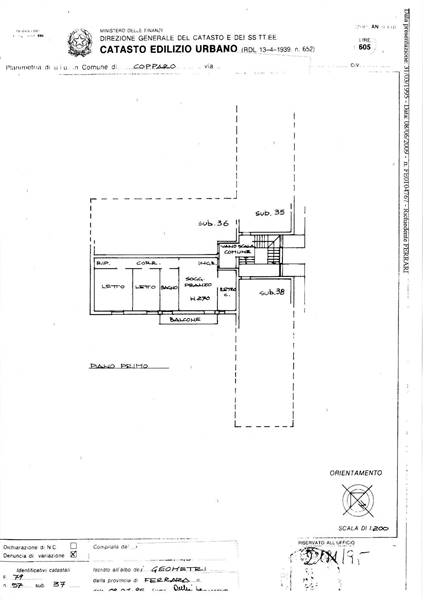
Appartamento in vendita nella frazione di Saletta, a pochi chilometri da Ferrara, libero subito, composto da Ingresso, soggiorno, cucinotto , due camere letto ( matrimoniale e doppia), bagno, ripostiglio e balcone di 6 mq. Box Auto di 15 mq L'appartamento è inserito in palazzina edificata a metà anni '90 in scala di una decina di appartamenti, è posto al primo piano ed è in ottime condizioni di manutenzione con buon livello di finiture. Impianti autonomi Prezzo richiesto 58.000,00 euro
Dove si trova
44.8848911.77213
Informazioni generali
A175
82 m2
4 locali
€ 58.000
Vendita
Appartamento
Copparo
Saletta - cà Matte
STAZIONE
€ 50
Libero
1995
23/11/2022
Accessori
1
2
Autonomo
Ottime
Cucinotto
si
si
6 mq
Planimetria
Video
Richiesta informazioni all'agenzia
Richiedi informazioni all'agenzia
ABITARE-IN ALBERTO ALBERTI
Via GINESTRA
44100
Ferrara
(FE)
P.IVA: 01646400380
