Colonica in zona Centro a Greve in Chianti
Colonica CON giardino e piscina
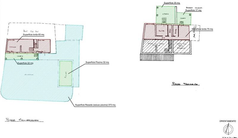
Greve in Chianti- A brevissima distanza dalla rinomata piazza principale, vendesi bellissima colonica con giardino, indipendente ma non isolata, ideale soluzione per chi vuole vivere la campagna senza rinunciare alle comodità ed ai servizi offerti dal paese. L'immobile si sviluppa su due livelli per complessivi mq 290 circa, composto al piano terra da ampia cucina con adiacente sala pranzo, un ampio soggiorno e un ripostiglio/lavanderia; ogni vano è collegato direttamente all'esterno attraverso porte finestre che conferiscono estrema luminosità all'ambiente e creano un tutt'uno con la bellissima loggia che unisce la zona giorno al giardino. Sulla parte tergale si trovano tre locali con ingresso indipendente, ma facilmente collegabili, da utilizzare come locali accessori e di servizio; al piano superiore trovano spazio tre camere matrimoniali e tre servizi, oltre un'ampia loggia che consente un ulteriore ingresso indipendente. L'immobile si presenta in buonissime con dizioni, con tipiche finiture toscane, esterni in pietra, soffitti con travi a vista e pavimenti in cotto. E' facilmente frazionabile e ideale sia come soluzione privata che destinata all'attività turistica. Il giardino esclusivo si estende per circa 400mq e gode di ottima privacy con la piscina collocata in una bellissima posizione soleggiata e panoramica, che la rende pienamente godibile. L'immobile è dotato di un pozzo privato oltre ad essere collegato all'acquedotto pubblico. Richiesta € 900.000 Rif. 3/1628 Per motivi di riservatezza la geolocalizzazione dell'immobile è solo indicativa.
Dove si trova
Informazioni generali
Accessori
Efficienza energetica
Planimetria
Richiesta informazioni all'agenzia
Richiedi informazioni all'agenzia
